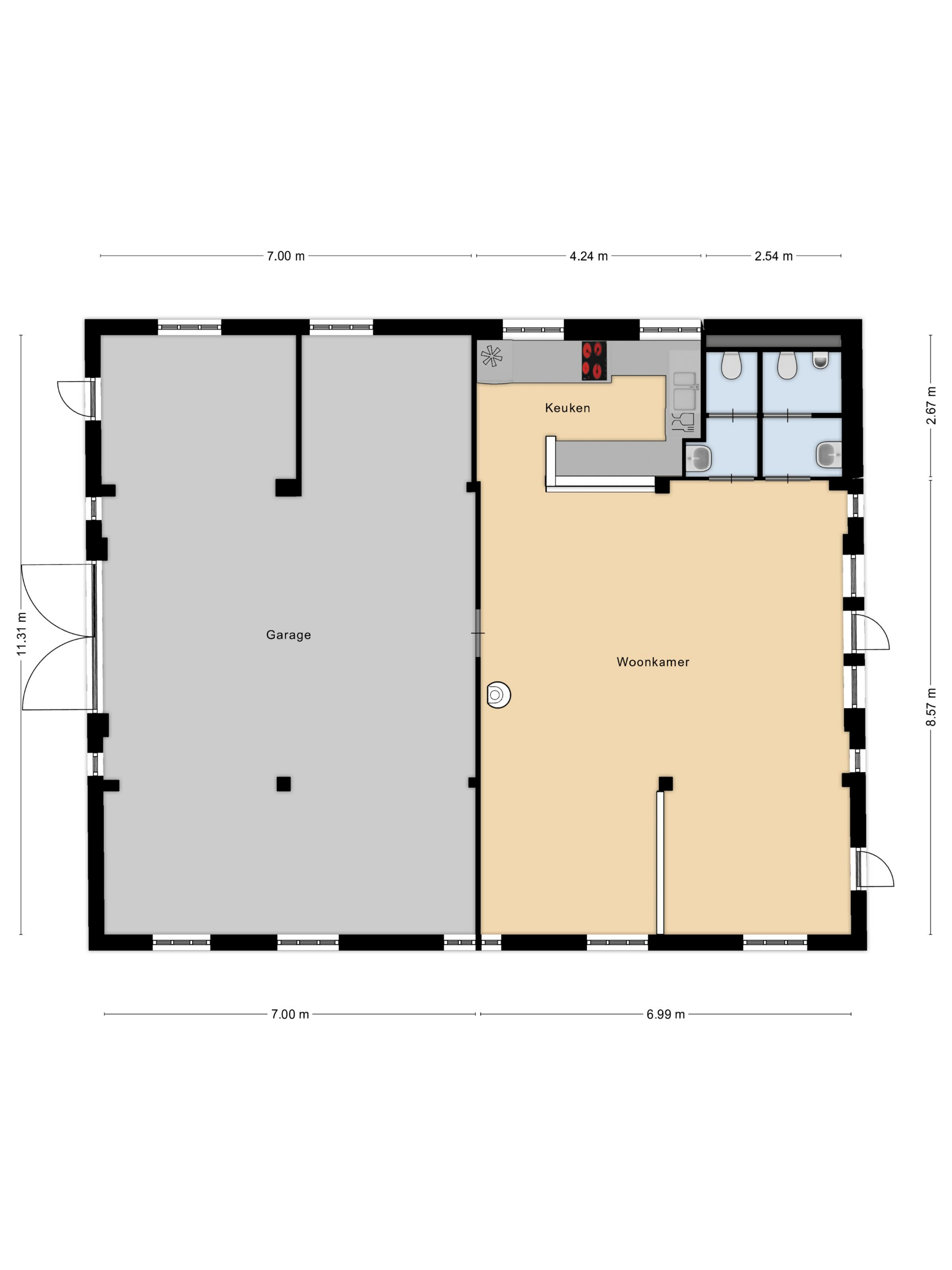
يقف العقار في ألمِن، هولندا، كتجسيد نادر للهيبة التاريخية والحياة المترفة الراقية، على ضفاف نهر بيركل الرومانسي. تشكل المزرعة الرئيسية، بمساحة معيشة تبلغ 438 م² وحجم 2,564 م³، محور عقار يمتد على حوالي 70,635 م²، يحيط به غابات البلوط والزان، ومروج الزهور البرية، وحديقة زينة. يجسد هذا الموقع قرونًا من التراث الهولندي، حيث ورد ذكر "إيرفه بيسلينك" في الأرشيف منذ عام 1382، في حين أن المسكن الرئيسي المبني عام 1800 قد تحول بالكامل إلى مستوى معيشة معاصر بمعايير استثنائية بعد تجديده عام 2011.
يمزج الدّاخل بين الطابع التاريخي الوقور والمواد العصرية. تتعايش أرضيات ترافرتين فيو دو بورغوني، والبلوط المشحوم بالزيت، والأقمشة الفاخرة على الجدران، مع أرضيات مستعادة بعناية، جنبًا إلى جنب مع اللمسات الحديثة مثل التكييف، والتدفئة الأرضية، والألواح الشمسية. تحتوي غرف النوم الثلاث على جناح رئيسي هادئ، يضم دشًّا مزدوجًا مطريًا، وحوض استحمام مستقلًّا، وغرفة ملابس بأبواب خشبية ملتهبة. أما مساحات المعيشة فهي منفتحة ومضيئة، مع أبواب منزلقة تربط بين غرف الموسيقى، والحدائق، والتراسات الموجهة لاقتناص الضوء الطبيعي وإطلالات النهر.
أما الحظيرة متعددة الاستخدامات فيمكن استغلالها كاستوديو خاص، أو ورشة عمل، أو مكان للضيافة، مع الحفاظ على العوارض الأصلية والمواد المعاد توظيفها. وبجوار المطبخ، يطل تراس مشمس على البساتين والحدود المُنسقة بإتقان، فيما توفر الدفيئة وحديقة الخضار على تحقيق الاكتفاء الذاتي. وتسمح حظيرة التبن الكلاسيكية بتخزين السيارات، بينما توفر المساحات الخاصة مواقف وفيرة تضمن الخصوصية والسهولة.
خارج نطاق المزرعة، تقدم ألمِن مناظر شاعرية، وطرقات أرستقراطية، وكنائس قديمة، وسهولة الوصول إلى زوتفن ومنطقة راندستاد الكبرى، فيما يدعو نهر بيركل إلى التنزه والمشي وهدوء الريف. معترف به بموجب قانون الجمال الطبيعي لعام 1928، يجمع هذا العقار في ألمِن، هولندا، بين الأصالة والمناظر الطبيعية والحرفية الخالدة، ليمنح خصوصية نادرة ومنظورًا استثنائيًّا.
استكشف Almen مع Baerz، مستشارك الموثوق للعثور على العقارات الشخصية
تتطلب سوق العقارات الفاخرة في ألمن معرفة عميقة وخبرة بالعلاقات المحلية. يمنحك المستشارون الموثوقون وصولًا للعقارات السرية، ويشرفون على المفاوضات بحرفية، ويضمنون الالتزام بكافة التفاصيل القانونية. فهمهم للسياق المحلي يضمن سلاسة العملية من أول زيارة وحتى ما بعد التسليم.
تجنب المزالق الشائعة
غالبًا ما يهدر المشترون الدوليون وقتًا ثمينًا أثناء التنقل بين القوائم المكررة أو القديمة أو المضللة عبر الإنترنت، خاصةً أن ما يقرب من 30% من العقارات الفاخرة لا تظهر في السوق على الإطلاق.
يمثل وكلاء البائعين مصالح البائع وليس مصالحك، وحتى مجرد الاستفسار عن عقار قد يؤدي إلى تسجيلك كـ "عميل" لديهم دون موافقتك.
مع Baerz Property Finders & Advisors، يمكنك تجنب هذه المزالق تمامًا.
نحن نعمل حصريًا نيابة عنك، ونقدم لك تمثيلاً مستقلاً، وإرشادًا شفافًا، وإمكانية الوصول إلى كل عقار متاح، بما في ذلك الفرص الخاصة وغير المطروحة في السوق والتي لا يراها الآخرون أبدًا.
هل ترغب في معرفة كيفية الحصول على مستشار عقاري شخصي؟ اتصل بنا لتتعرف على كيفية تمثيل مصالحك وفتح السوق بالكامل أمامك.