Ons kantoor is lid van Baerz & Co Luxury Homes; een internationaal platform dat exclusieve woningmakelaars met elkaar verbindt. Neem contact op met ons secretariaat voor meer informatie over het landelijke aanbod, waarvan u hieronder een selectie kunt bekijken.

HAAREN
Nieuwe Erven 12 - 5076 NP
هولندا

Marleen de Bekker profile image
Marleen de Bekker
Real Estate Agent
€1,250,000 k.k.
منطقة المعيشة
184m2
حجم الأرض
918m2
غرف النوم
5

الوصف

يمنح هذا المنزل العائلي في هارن مزيجًا نادرًا من الخصوصية وفسحة المعيشة، إذ يقع على قطعة أرض سخية تبلغ مساحتها 918 م² على أطراف القرية. مع مساحة معيشة تبلغ 184 م²، يقدم المنزل أربع غرف نوم كلها على مستوى واحد، مما يجعله مثاليًا لحياة عائلية متناغمة. يظهر التصميم المدروس في الانتقال السلس من غرفة المعيشة المشمسة، التي تطل عليها نوافذ واسعة ومدفأة مركزية، إلى مطبخ عصري مفتوح مطلي بألوان بيضاء لامعة مع سطح عمل من الكومبوزيت، وصنبور Quooker، واثنين من الأفران. غرفة الخدمات الكبيرة متصلة بكل من المرآب والحديقة، مما يعزز الراحة اليومية.

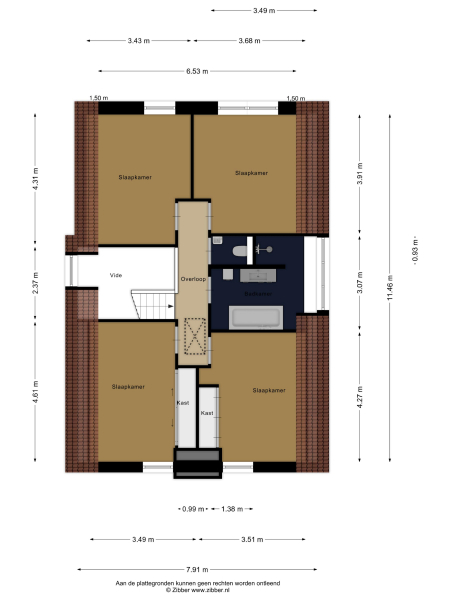
في الطابق العلوي، تقدم كل غرفة نوم مساحة هادئة تبلغ نحو 15 م²، بينما يحتوي الحمام على دش واسع، وحوضي غسيل، وحوض استحمام كبير، وإضاءة طبيعية، وتدفئة أرضية. ويعمل العلِّيَة الممتدة على طول المنزل كاملًا كمخزن واسع للاحتياجات الموسمية.

في الخارج، تتنوع أوقات اليوم بين شرفة كبيرة مشمسة، ومنطقة مغطاة بسقف زجاجي، وساونا خاصة منعزلة. وتوفر أشجار السياج الناضجة خصوصية تامة، مع وجود مساحة للعب والاسترخاء. ويضيف المرآب المعزول البالغ مقاسه 3.85 م × 6.30 م المزيد من الخيارات، بينما يتسع الممر لأربع إلى ست سيارات. وتؤكد الألواح الشمسية الثمانية عشر، والعزل الكامل، وتصنيف الطاقة A+ على الكفاءة الدائمة.

يقع المنزل في حي سكني هادئ في هارن، قريب من المقاهي والمطاعم ومسارات الدراجات، بالإضافة إلى محمية كامبينا الطبيعية الشاسعة ومنتزه الكثبان الوطنية لوونسه أون درونينسه. ويحدد الجمع بين تدفق المساحات الداخلية والخارجية، ووسائل الراحة المعاصرة، والقرب من حياة القرية هذه الملكية كملاذ عائلي دافئ في قلب هولندا.

استكشف Haaren مع Baerz، مستشارك الموثوق للعثور على العقارات الشخصية

يستفيد العملاء المميزون من خبراء لديهم معرفة متعمقة بالسوق المحلي، وشبكات قوية مع ملاك العقارات، وإلمام بإدارة الصفقات الدولية. العديد من أفضل عقارات هارن يتم تداولها بشكل خاص، ما يتطلب وسيطًا ذا خبرة بارعة في التفاوض والتدقيق وخدمة العميل المخصصة. تكمن قيمة المستشار في الوصول إلى الفرص الخفية وحماية مصالح العملاء خلال العمليات المعقدة.

تجنب المزالق الشائعة

غالبًا ما يهدر المشترون الدوليون وقتًا ثمينًا أثناء التنقل بين القوائم المكررة أو القديمة أو المضللة عبر الإنترنت، خاصةً أن ما يقرب من 30% من العقارات الفاخرة لا تظهر في السوق على الإطلاق.
يمثل وكلاء البائعين مصالح البائع وليس مصالحك، وحتى مجرد الاستفسار عن عقار قد يؤدي إلى تسجيلك كـ "عميل" لديهم دون موافقتك.
مع Baerz Property Finders & Advisors، يمكنك تجنب هذه المزالق تمامًا.
نحن نعمل حصريًا نيابة عنك، ونقدم لك تمثيلاً مستقلاً، وإرشادًا شفافًا، وإمكانية الوصول إلى كل عقار متاح، بما في ذلك الفرص الخاصة وغير المطروحة في السوق والتي لا يراها الآخرون أبدًا.

هل ترغب في معرفة كيفية الحصول على مستشار عقاري شخصي؟ اتصل بنا لتتعرف على كيفية تمثيل مصالحك وفتح السوق بالكامل أمامك.

الميزات

الألواح الشمسية
نقل الملكية
السعر المطلوب
€ 1.250.000 k.k.
الحالة
onder bod
القبول
in overleg
البناء
نوع المنزل
Eengezinswoning
نوع المبنى
vrijstaande woning
فترة البناء
2016
تقييم الطاقة
A+
نوع السقف
zadeldak
غرف النوم
5
الحمامات
1
المساحات السطحية والحجم
منطقة المعيشة
184 m2
مساحة داخلية أخرى
44 m2
المساحة الخارجية الملحقة بالمبنى
36 m2
مساحة التخزين الخارجية
9 m2
الحجم بالأمتار المكعبة
844 m3
حجم الأرض
918 m2
المرافق
Mechanische ventilatie
Tv kabel
Rookkanaal
Schuifpui
Sauna
Glasvezel kabel
Zonnepanelen
Aan rustige weg
In woonwijk
Baerz & Co Property Brochure

كتيب

فيديوهات

مخططات الطوابق

Finesse Makelaardij

Groenstraat 31
5062 NA Oisterwijk

info@finesse-makelaardij.nl
+31 655757171

www.finesse-makelaardij.nl

طلب معلومات / مشاهدة

Marleen de Bekker profile image
Marleen de Bekker
Real Estate Agent