Ons kantoor is lid van Baerz & Co Luxury Homes; een internationaal platform dat exclusieve woningmakelaars met elkaar verbindt. Neem contact op met ons secretariaat voor meer informatie over het landelijke aanbod, waarvan u hieronder een selectie kunt bekijken.

HARLINGEN
Noorderhaven 102 - 8861 AR
هولندا

Ellen Schoneveld profile image
Ellen Schoneveld
Real Estate Agent
€1,150,000 k.k.
منطقة المعيشة
208m2
حجم الأرض
148m2
غرف النوم
5

الوصف

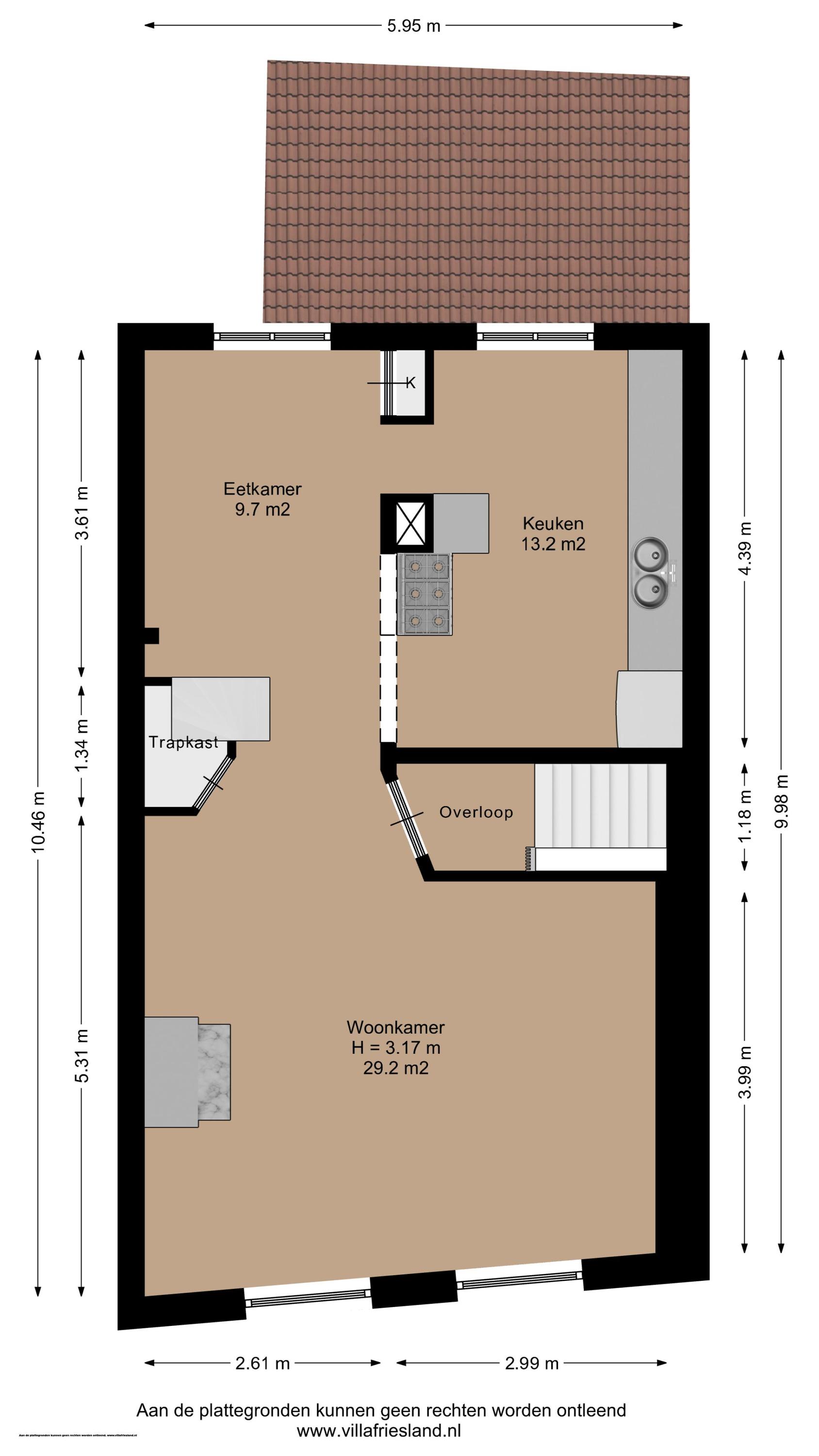
يعد منزل القناة في هارلينجن تمازجًا نادرًا بين التراث والفخامة الراقية، حيث يوفر مساحة معيشة تبلغ 208 م² في قلب أكثر بلدات المرافئ عراقة في فريسلاند. هذا النصب الوطني، الذي يعود تاريخه إلى عام 1639، يبرز بفخر على طول نورديرهفن، حيث تقود واجهته الرمزية إلى داخلية يميزها الحرفية التاريخية والسخاء المكاني. تتوزع خمس غرف نوم وثلاث حمامات عبر أربعة طوابق أنيقة، ويغمر كل ركن بأضواء النوافذ الأصلية وإطلالات على المدينة والميناء المد والجزر.

يضم طابق البل آتاج مكتبًا راقيًا تكسوه الإطلالات على المياه وجناحًا حديقيًا فسيحًا يفتح على حديقة خاصة مواجهة للجنوب داخل المدينة. صممت مساحات المعيشة وتناول الطعام بعناية لاحترام التفاصيل التاريخية—أسقف مزخرفة وأرضيات خشبية عتيقة ومدافئ من الرخام ومطبخ أصيل مزين ببلاط فريسي تقليدي. سقف العقار، الذي تم عزله وتجديده مؤخرًا في عام 2015، يجمع بين الراحة والأصالة.

تتجلى الحياة الحضرية على بُعد خطوات من المطاعم الفاخرة والمرافق ومحطة القطار، فيما تبعد أمستردام ساعة واحدة فقط عبر أفشلوتديك. تعزز التحسينات الحديثة مثل الزجاج المزدوج، التهوية الميكانيكية والطبيعية، كابلات الألياف البصرية، والتدفئة الفعالة جودة البناء الأصلي. في منزل القناة هارلينجن، يتدفق عبق التاريخ جنبًا إلى جنب مع أجواء السكينة اليومية، مما يجعله فرصة استثنائية للعيش في مكان يتلاحم فيه السرد والمكان. لأولئك الذين يبحثون عن منزل فاخر على القناة للبيع في هارلينجن، يوفر هذا العقار عزلة حضرية مع إطلالة متواصلة على الميناء.

استكشف Harlingen مع Baerz، مستشارك الموثوق للعثور على العقارات الشخصية

يتأثر سوق الفخامة في هارلينجن بعمليات بيع سرية، وتشريعات معقدة، وبيئة حماية معمارية دقيقة. يقدم المستشارون الخبراء فرصاً حصرية خارج السوق ودعماً استراتيجياً أثناء المفاوضات والعقود. تساعد معرفتهم على تحقيق أفضل قيمة في ظل الاعتبارات الثقافية والقانونية والمحافظة على الطابع الهولندي الخاص.

تجنب المزالق الشائعة

غالبًا ما يهدر المشترون الدوليون وقتًا ثمينًا أثناء التنقل بين القوائم المكررة أو القديمة أو المضللة عبر الإنترنت، خاصةً أن ما يقرب من 30% من العقارات الفاخرة لا تظهر في السوق على الإطلاق.
يمثل وكلاء البائعين مصالح البائع وليس مصالحك، وحتى مجرد الاستفسار عن عقار قد يؤدي إلى تسجيلك كـ "عميل" لديهم دون موافقتك.
مع Baerz Property Finders & Advisors، يمكنك تجنب هذه المزالق تمامًا.
نحن نعمل حصريًا نيابة عنك، ونقدم لك تمثيلاً مستقلاً، وإرشادًا شفافًا، وإمكانية الوصول إلى كل عقار متاح، بما في ذلك الفرص الخاصة وغير المطروحة في السوق والتي لا يراها الآخرون أبدًا.

هل ترغب في معرفة كيفية الحصول على مستشار عقاري شخصي؟ اتصل بنا لتتعرف على كيفية تمثيل مصالحك وفتح السوق بالكامل أمامك.

الميزات

نقل الملكية
السعر المطلوب
€ 1.150.000 k.k.
الحالة
beschikbaar
القبول
in overleg
البناء
نوع المنزل
Grachtenpand
نوع المبنى
tussenwoning
نوع السقف
samengesteld dak
غرف النوم
5
الحمامات
3
المساحات السطحية والحجم
منطقة المعيشة
208 m2
مساحة داخلية أخرى
0 m2
الحجم بالأمتار المكعبة
762 m3
حجم الأرض
148 m2
المرافق
Mechanische ventilatie
Tv kabel
Rookkanaal
Dakraam
Glasvezel kabel
Natuurlijke ventilatie
Aan water
In centrum
Vrij uitzicht
Aan vaarwater
Baerz & Co Property Brochure

كتيب

فيديوهات

مخططات الطوابق

Villa Friesland Makelaardij

Lange Marktstraat 1
8911 AD Leeuwarden

info@villafriesland.nl
+31 (0)58 - 23 006 23

www.villafriesland.nl

طلب معلومات / مشاهدة

Ellen Schoneveld profile image
Ellen Schoneveld
Real Estate Agent