Ons kantoor is lid van Baerz & Co Luxury Homes; een internationaal platform dat exclusieve woningmakelaars met elkaar verbindt. Neem contact op met ons secretariaat voor meer informatie over het landelijke aanbod, waarvan u hieronder een selectie kunt bekijken.

ZALTBOMMEL
Tolstraat 21 - 5301 AX
هولندا

Jeanette van Haaften profile image
Jeanette van Haaften
Real Estate Agent
€1,000,000 k.k.
منطقة المعيشة
299m2
حجم الأرض
204m2
غرف النوم
3

الوصف

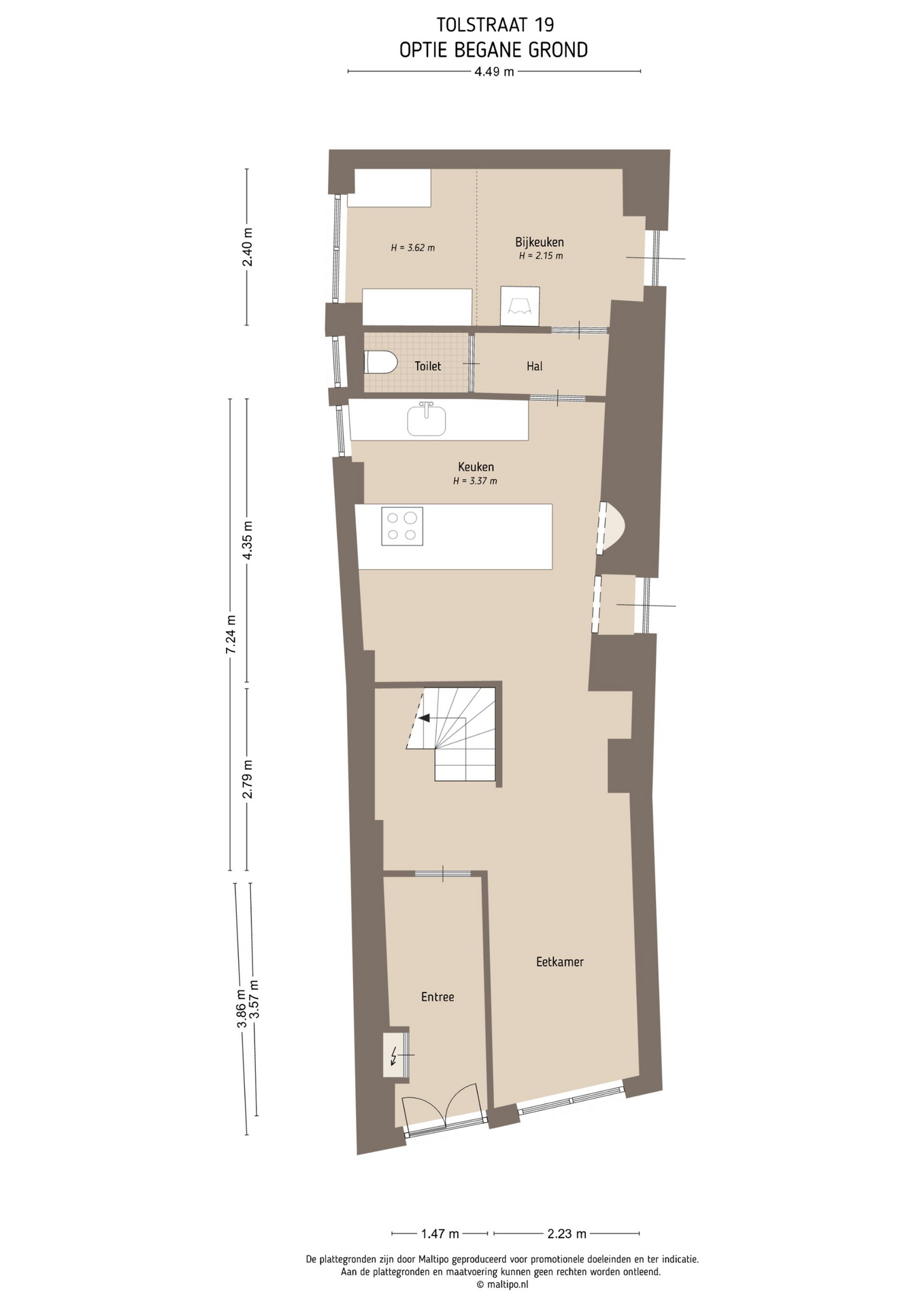
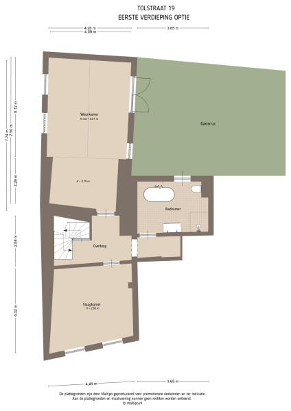
يقدم تاون هاوس زالتبومل توازناً نادراً بين المساحة والتراث والمرونة، مع مساحات داخلية تم ترميمها بدقة تبلغ 299 م² وشرفة على السطح بمساحة 45 م² تطل على نهر وال. يقع هذا العقار المخصص للعيش والعمل ضمن سور المدينة التاريخي ويضم ثلاث غرف نوم وحمامين موزعين على وحدتين سكنيتين متصلتين على مساحة أرض تبلغ 204 م²، مع إمكانية التقسيم شرط الحصول على التراخيص اللازمة.

تحافظ الهندسة المعمارية على طابع القرن السابع عشر، من العوارض المكشوفة إلى الدرج الحلزوني العتيق، مع تكييفها لاحتياجات الحياة العصرية من خلال مطبخ حديث لعام 2020 وحمامات فاخرة وعزل مطور بالكامل. يميز الضوء الطبيعي والأسقف العالية والإيقاع الهادئ كل طابق: يشكل المطبخ الواسع محور تجمع العائلة، وينعم الأتيليه المشمس أو الاستوديو بمساحة تبلغ تقريباً 65 م²، مما يوفر مساحة سخية للإبداع والعمل. ترتفع غرفة المعيشة بأسقف تصل إلى 6.5 متر، موفرة اتصالاً بين الراحة الداخلية والهدوء الخارجي عبر أبواب مزدوجة تفتح إلى الشرفة المصممة بعناية، حيث تمتد الإطلالات نحو النهر وتحف أشجار الزيتون الصباحات الهادئة.

يضيف تولسترات 21 مساحة استوديو منفصلة مع عزل صوتي ومدخل خاص، مما يجعله مثالياً كمعرض فني أو مشغل. تؤكد تصنيف الطاقة C على الترقيات المدروسة والتي تشمل العزل للسقف والجدران، والزجاج عالي الكفاءة، والتدفئة الأرضية في بعض الغرف، وتسع عشرة لوحة شمسية. تتضمن المرافق إنترنت فائق السرعة، ونظام إنذار، والتهوية الطبيعية.

يقع العقار في شارع جانبي باتجاه واحد قريب من وسط زالتبومل النابض بالحياة، ويوفر خصوصية إلى جانب سهولة الوصول إلى المقاهي والمتاجر والمدارس والأندية الرياضية والمحطة. تقع واجهة النهر والشوارع التجارية المحلية على بعد خطوات، مما يجعل هذا المنزل مثالياً لمن يبحثون عن مساحة متعددة الاستخدامات وتراث وتواصل مع المشهد الهولندي التاريخي.

استكشف Zaltbommel مع Baerz، مستشارك الموثوق للعثور على العقارات الشخصية

الحصول على عقار مميز في زالتبومل يتطلب الوصول إلى علاقات وخبرة متعمقة تتجاوز العقارات المعروضة للعلن. يدعم المستشارون العملاء بالمعرفة المحلية ويفتحون الأبواب للفرص السرية، ويوجهون التفاوض، ويضمنون الدقة في جميع مراحل العملية.

تجنب المزالق الشائعة

غالبًا ما يهدر المشترون الدوليون وقتًا ثمينًا أثناء التنقل بين القوائم المكررة أو القديمة أو المضللة عبر الإنترنت، خاصةً أن ما يقرب من 30% من العقارات الفاخرة لا تظهر في السوق على الإطلاق.
يمثل وكلاء البائعين مصالح البائع وليس مصالحك، وحتى مجرد الاستفسار عن عقار قد يؤدي إلى تسجيلك كـ "عميل" لديهم دون موافقتك.
مع Baerz Property Finders & Advisors، يمكنك تجنب هذه المزالق تمامًا.
نحن نعمل حصريًا نيابة عنك، ونقدم لك تمثيلاً مستقلاً، وإرشادًا شفافًا، وإمكانية الوصول إلى كل عقار متاح، بما في ذلك الفرص الخاصة وغير المطروحة في السوق والتي لا يراها الآخرون أبدًا.

هل ترغب في معرفة كيفية الحصول على مستشار عقاري شخصي؟ اتصل بنا لتتعرف على كيفية تمثيل مصالحك وفتح السوق بالكامل أمامك.

الميزات

الألواح الشمسية
Alarm system
نقل الملكية
السعر المطلوب
€ 1.000.000 k.k.
الحالة
beschikbaar
القبول
in overleg
البناء
نوع المنزل
Herenhuis
نوع المبنى
tussenwoning
فترة البناء
1750
تقييم الطاقة
C
نوع السقف
samengesteld dak
غرف النوم
3
الحمامات
2
المساحات السطحية والحجم
منطقة المعيشة
299 m2
مساحة داخلية أخرى
15 m2
المساحة الخارجية الملحقة بالمبنى
45 m2
الحجم بالأمتار المكعبة
1265 m3
حجم الأرض
204 m2
المرافق
Alarminstallatie
Dakraam
Glasvezel kabel
Zonnepanelen
Natuurlijke ventilatie
Aan rustige weg
In centrum
Baerz & Co Property Brochure

كتيب

فيديوهات

بانوراما 360 درجة

360°
360 Panorama - Tolstraat 21
360°
360 Panorama - Tolstraat 21
360°
360 Panorama - Tolstraat 21
360°
360 Panorama - Tolstraat 21

مخططات الطوابق

Bijzonder Wonen Makelaardij

Heilige Geeststraat, 11
5301CP Zaltbommel

info@bijzonderwonen.com
+31 41 868 00 50

www.bijzonderwonen.com

طلب معلومات / مشاهدة

Jeanette van Haaften profile image
Jeanette van Haaften
Real Estate Agent