Die freistehende Villa Woerdense Verlaat liegt diskret im ländlichen Herzen der Niederlande und bietet 227 m² Wohnfläche auf einem weitläufigen Anwesen von 46.341 m². Über eine lange Auffahrt und ein elektrisches Tor erreichbar, eröffnet sich die Villa zu sorgfältig gestalteten Gärten und ruhigen Uferperspektiven – ein Refugium von Frieden und Abgeschiedenheit. Im Hauptgebäude begrüßt eine großzügige Eingangshalle mit skulpturaler Holztreppe die lichtdurchfluteten Innenräume. Das Wohnzimmer zeichnet sich durch helle Räume, Gartenblicke und die behagliche Wärme eines Holzofens aus. Französische Türen führen auf sonnige Terrassen, die das Wohngefühl nach außen erweitern. Die Küche – veredelt mit Granitoberflächen und modernen Geräten – begleitet sowohl den Alltag als auch gesellige Zusammenkünfte.
Ein separates Gästehaus mit eigenem Eingang und direktem Zugang zum Garten bietet komfortable Wohnfläche, Küche, Schlafzimmer sowie ein Bad en suite – ideal für Gäste oder ein Mehrgenerationen-Konzept. Im Obergeschoss sorgen drei Schlafzimmer und ein Hauptbadezimmer mit Doppelwaschbecken und Regendusche für ruhigen Luxus. Eichenholzböden unterstreichen die zurückhaltende Atmosphäre. Für Energieeffizienz ist mit einer Lüftungsanlage mit Wärmerückgewinnung, Wärmepumpe und 68 Solarpaneelen umfassend gesorgt.
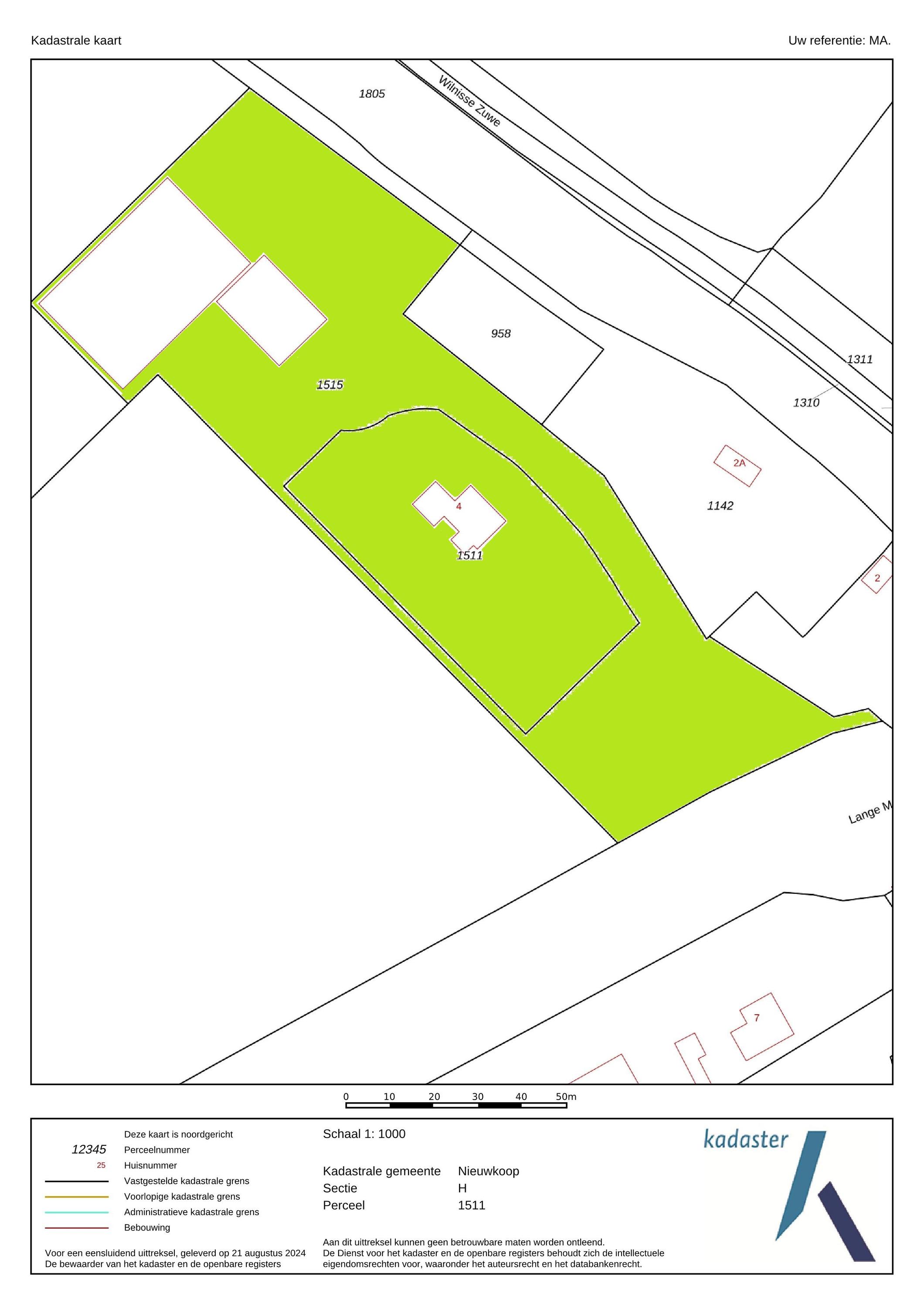
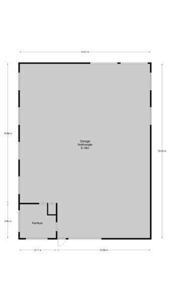
Außen dient eine beeindruckende Scheune von 294 m² als Werkstatt oder Büro und integriert Regenwasserspeicherung, Pelletsofen sowie Solartechnik. Ein Gewächshaus mit 1.093 m² lädt zum Gärtnern und Entspannen ein. Darüber hinaus bieten weitläufige Wiesen reichlich Platz zur Erholung oder für Tiere. Gelegen in Woerdense Verlaat – einem von Natur, Wasser und Tradition geprägten Dorf – vereint die Immobilie absolute Privatsphäre mit Anbindung an Breukelen, städtische Verbindungen und vielfältige Freizeitmöglichkeiten. Diese luxuriöse Villa zum Verkauf in Woerdense Verlaat verkörpert die seltene Balance aus ländlicher Freiheit und kultiviertem Wohnen.
Entdecken Sie Woerdense Verlaat mit Baerz, Ihrem vertrauenswürdigen persönlichen Immobilienfinder und Berater
Lokale Marktkenntnisse und Zugang zu diskreten Angeboten machen erfahrene Berater unersetzlich. Experten verschaffen Zugang zu Immobilien, die nur selten öffentlich erscheinen. Ihr Know-how in Bezug auf Transaktionsdetails, Renovierungspotenzial und Denkmalschutz ermöglicht die optimale Auswahl, erfolgreiche Verhandlungen und höchste Diskretion in jeder Phase.
Häufige Fallstricke vermeiden
Internationale Käufer verlieren oft wertvolle Zeit, weil sie sich durch doppelte, veraltete oder irreführende Online-Angebote kämpfen müssen – besonders da fast 30% aller Luxusimmobilien überhaupt nicht auf dem Markt erscheinen.
Makler des Verkäufers vertreten die Interessen des Verkäufers, nicht Ihre, und schon eine einfache Anfrage kann dazu führen, dass eine Agentur Sie ohne Ihre Zustimmung als deren „Kunden“ registriert.
Mit Baerz Property Finders & Advisors umgehen Sie all diese Fallstricke vollständig.
Wir handeln ausschließlich in Ihrem Interesse, bieten unabhängige Vertretung, transparente Beratung und Zugang zu jedem verfügbaren Objekt – einschließlich privater und off-market Angebote, die andere nie zu sehen bekommen.
Neugierig, wie Sie Ihren eigenen Personal Property Advisor sichern können? Kontaktieren Sie uns, um zu erfahren, wie wir Ihre Interessen vertreten und Ihnen den gesamten Markt öffnen können.