Ons kantoor is lid van Baerz & Co Luxury Homes; een internationaal platform dat exclusieve woningmakelaars met elkaar verbindt. Neem contact op met ons secretariaat voor meer informatie over het landelijke aanbod, waarvan u hieronder een selectie kunt bekijken.

AMSTERDAM
Govert Flinckstraat 264 H - 1073 CE
Netherlands

Bert Kock profile image
Bert Kock
Real Estate Agent
€1,100,000 k.k.
Living Area
175m2
Plot Size
108m2
Bedrooms
5

Description

Final offer Tuesday 18th of November 2025 at 10AM.

Govert Flinckstraat 264 H, 1073 CE AMSTERDAM

Located on the lively Govert Flinckstraat, in the heart of the sought-after De Pijp district, this unique property comprises two self-contained residences, each with its own house number and private entrance. The building has not yet been divided into separate apartment rights, offering various possibilities for both families and investors. Options include creating a spacious family home, dual occupancy (for example, parents and studying children), or dividing the property into two independent apartments after obtaining the required permits. The total living area amounts to approximately 175 m², spread over four floors, featuring a sunny south-facing garden and a balcony on the top floor.

Location & Accessibility
The apartment is exceptionally well situated in the vibrant De Pijp neighbourhood. Just a few minutes’ walk away lies the famous Albert Cuyp Market, where you can find everything from fresh produce to clothing and more. The charming Sarphatipark is also nearby—perfect for a relaxing stroll or picnic. The area is brimming with trendy cafés, restaurants, and unique boutiques, ensuring there is always something new to discover. For daily groceries, several supermarkets such as Albert Heijn and Jumbo are within easy reach, as well as various specialty shops including a bakery, organic store, and wine merchant.

The location offers excellent accessibility: within ten minutes by bike, you can reach the city centre of Amsterdam. The Noord/Zuid metro line is less than a five-minute walk away, and multiple bus and tram stops are also nearby, as are Station RAI and Station Zuid/WTC. By car, the A10 Ring Road is easily accessible via the RAI exit, and Schiphol Airport can be reached within 15 minutes. Moreover, the street experiences very little traffic, meaning parking spaces are almost always available. In short, a lively and central location with an authentic Amsterdam atmosphere—where everything you need is right at your doorstep.

Layout

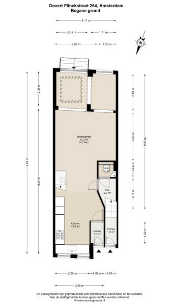
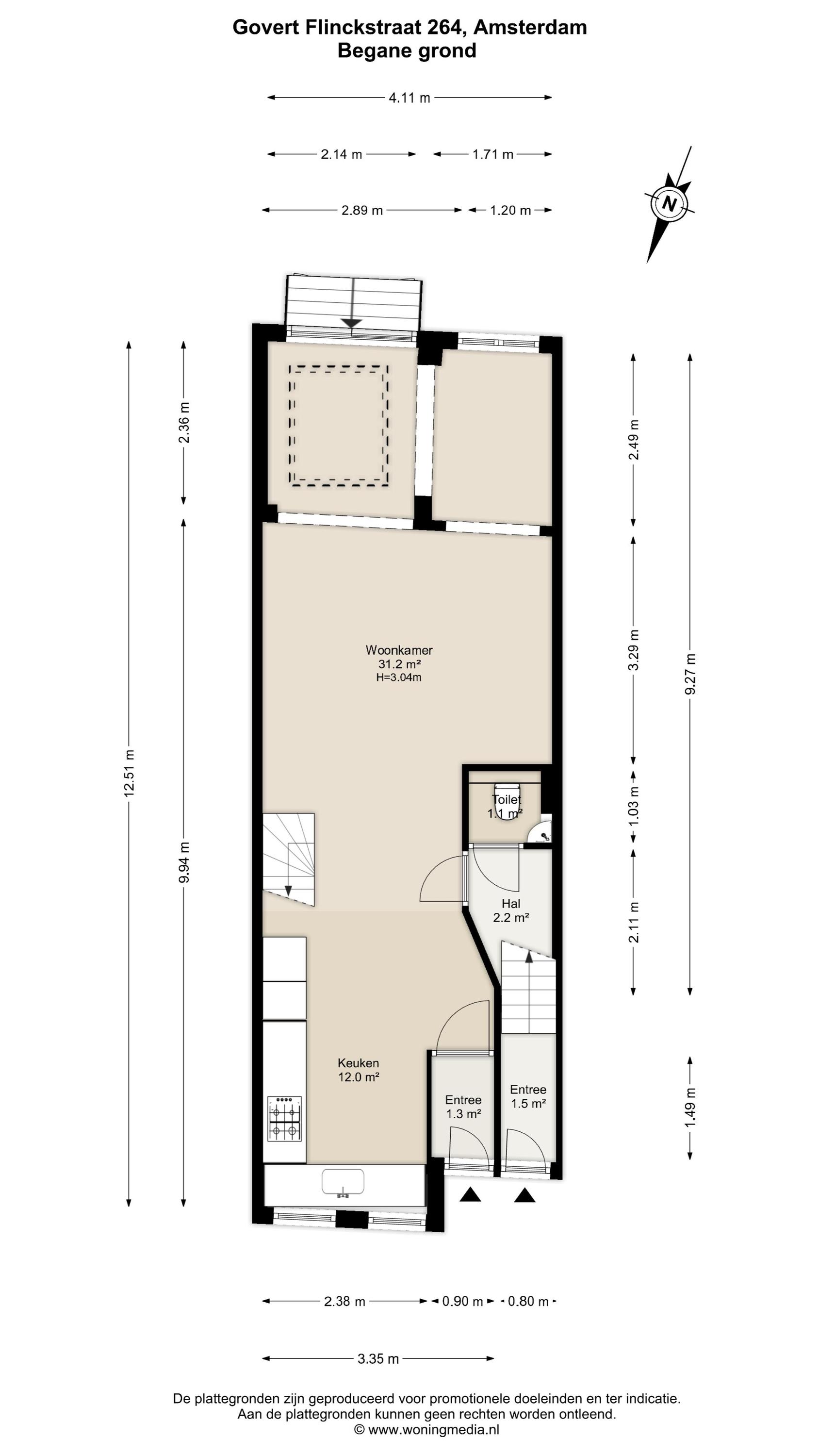
Ground Floor
Through the private entrance at street level and vestibule, you enter the open kitchen and spacious living room located at the rear. The ceiling height of over 3 meters, a large skylight, and French doors leading to the generous south-facing garden of approximately 49 m² create a wonderfully bright and airy atmosphere. The garden offers ample space for a comfortable lounge area, large dining table, or a children’s play corner a perfect place to enjoy the sun all day long. The open kitchen at the front, overlooking the street, is equipped with a sink, Howat 3-in-1 boiling water tap, 5-burner gas stove, built-in extractor hood, dishwasher, oven, microwave, refrigerator, and full-sized freezer.

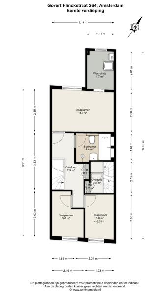
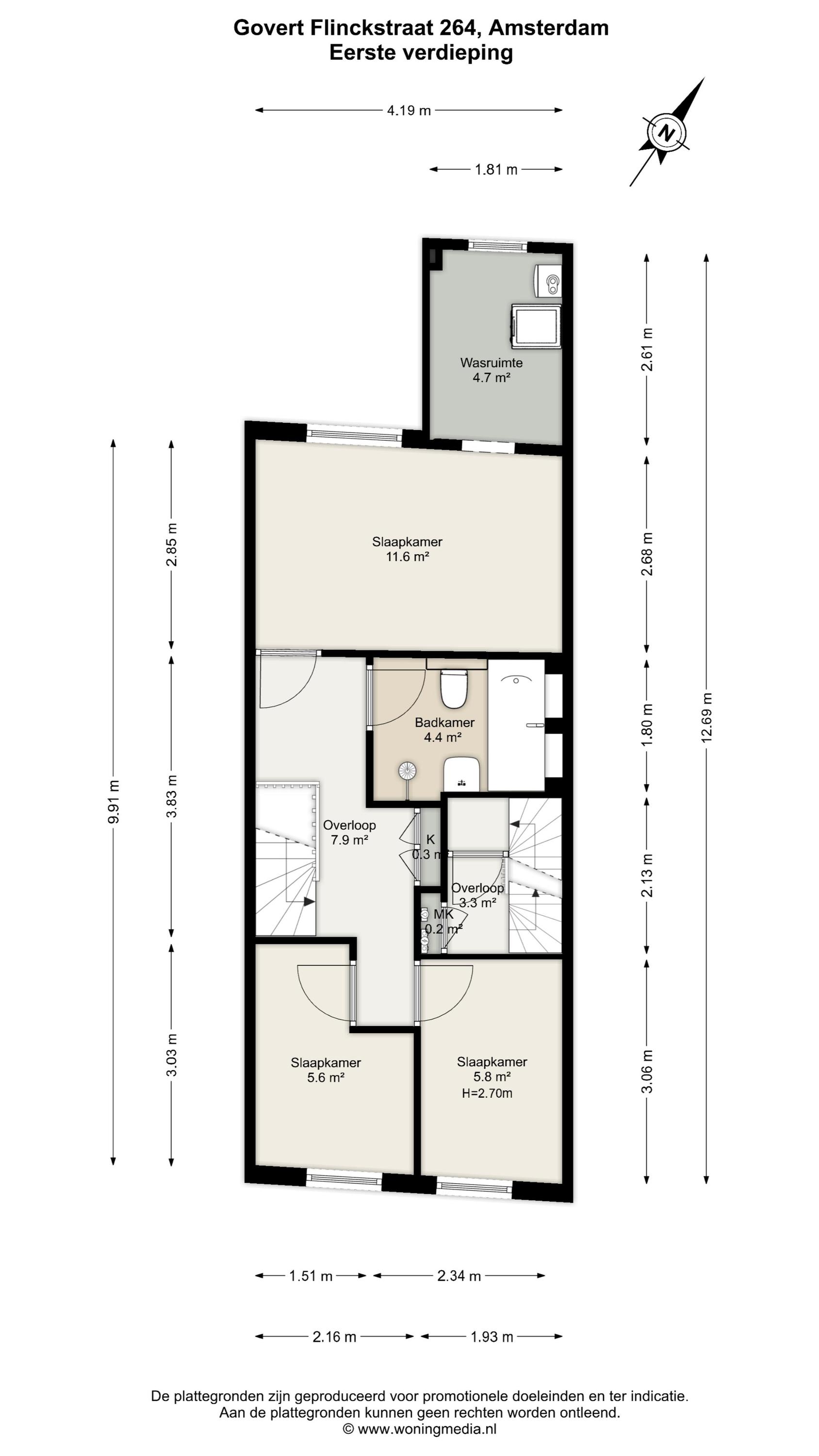
First Floor
An internal staircase in the living room connects the ground floor to the first floor, which comprises three bedrooms, a bathroom, and a separate laundry room. The main bedroom is located at the rear, while the two additional bedrooms are situated at the front. The bathroom is fitted with a bathtub, walk-in shower, washbasin, and toilet. The laundry room provides space for both a washing machine and dryer.

Second Floor
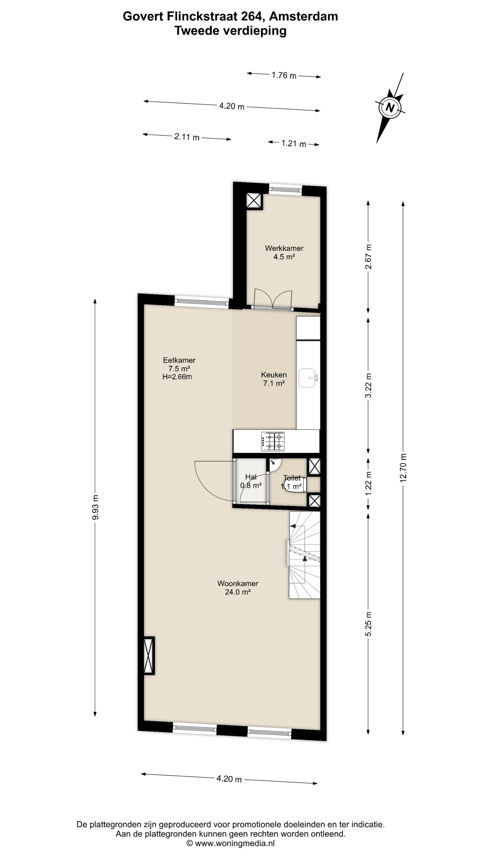
The second floor has its own private entrance and staircase from street level. This level features a spacious living room at the front and a dining area with an open kitchen at the rear. The kitchen is equipped with various built-in appliances, including a hob, refrigerator, freezer, oven, microwave, dishwasher, and extractor hood. At the back, there is a bright study or home office. A separate toilet is also present on this floor.

Third Floor
The top floor comprises two generous bedrooms and a second bathroom with a bathtub/shower combination, washbasin, and toilet. The main bedroom at the rear provides access to a balcony of approximately 4.5 m², while the second bedroom is located at the front. With its charming roof structure, dormer windows, and skylights, this floor offers a warm and characterful atmosphere with abundant natural light.

Key features
- Undivided, public law 2 dwellings and delivered completely empty;
- Residential floor area approximately 175 m² (NEN 2580 report available);
- South-facing garden of approximately 49 m² (NEN 2580 report available);
- South-facing balcony of approximately 5 m² (NEN 2580 report available);
- Five bedrooms;
- Two large bathrooms and two separate toilets;
- Energy label D;
- Central heating boiler on the ground floor owned; boiler on the second and third floors rented;
- Entire furnishings of the upper apartment can be taken over;
- Situated on freehold land, no ground lease;
- Foundation code 3 (2022);
- Possibility to obtain two parking permits;
- “As is, where is” clause applies;
- Delivery in negotiation, completely empty and vacant;

This information has been compiled by us with the utmost care. However, no liability is accepted for any incompleteness, inaccuracies, or otherwise, nor for the consequences thereof. All stated measurements and surface areas are indicative. The buyer has their own duty to investigate all matters that are important to them. With regard to this property, the real estate agent acts as an advisor to the seller. We strongly recommend that you engage a qualified (NVM) real estate agent to guide you through the purchasing process. Should you have specific wishes concerning the property, we advise you to communicate these in good time to your purchasing agent and to conduct (or have conducted) your own investigation into them. If you do not engage a professional representative, you are deemed legally knowledgeable enough to oversee all matters of importance. The NVM conditions apply.

Features

Transfer of ownership
Asking Price
€ 1.100.000 k.k.
Status
verkocht onder voorbehoud
Acceptance
in overleg
Construction
Kind of house
Eengezinswoning
Building type
tussenwoning
Construction period
1885
Energy rating
D
Roof type
mansarde dak
Bedrooms
5
Bathrooms
2
Surface Areas And Volume
Living Area
175 m2
Other indoor space
0 m2
Exterior space attached to the buildinge
5 m2
Volume in cubic meters
611 m3
Plot Size
108 m2
Facilities
Tv kabel
Natuurlijke ventilatie
In centrum
In woonwijk
Baerz & Co Property Brochure

Brochure

Videos

KockvanBenthem Makelaars

Bisschopstraat 18
7571 CZ Oldenzaal

bk@kvbm.nl
+31 541 52 20 22

www.kvbm.nl

Information / Viewing request

Bert Kock profile image
Bert Kock
Real Estate Agent

Buying a Luxury Property in Amsterdam

Amsterdam offers a cosmopolitan lifestyle defined by heritage, connectivity, and discreet luxury. Residents benefit from a robust international community, curated services, and vibrant culture. The city’s enduring appeal lies in its blend of history, sophistication, and progressive spirit.