Ons kantoor is lid van Baerz & Co Luxury Homes; een internationaal platform dat exclusieve woningmakelaars met elkaar verbindt. Neem contact op met ons secretariaat voor meer informatie over het landelijke aanbod, waarvan u hieronder een selectie kunt bekijken.

Bovenwoning for sale in AMSTERDAM

AMSTERDAM Stadionkade 37 3 - 1077 VP The Netherlands


Eran Hausel profile image
Eran Hausel
Real Estate Agent
+31 6 46 11 94 28
info@heerenmakelaars.nl

Heeren Makelaars
Stadionweg 75
1077 SE Amsterdam
NETHERLANDS
+31 0204702255
www.heerenmakelaars.nl
info@heerenmakelaars.nl

Living area
194m2
Plot size
622m2
Bedrooms
6

Description

Stadionkade 37-3, 1077 VP Amsterdam

In a prime location in Amsterdam South, boasting beautiful views over the water, we proudly present this high-quality renovated upper-level apartment of approximately 194 m². The property features six bedrooms, a spacious through-living room, and a sunny rooftop terrace. Its location is excellent, just moments away from the Zuidas business district, Beethovenstraat, and Zuid/WTC station.
Location & Accessibility:

The property is located in the Stadionbuurt, just around the corner from Stadionweg. Both Beethovenstraat and Olympiaplein are only a stone’s throw away and offer a wide selection of upscale shops, delicatessens, cafés, and all daily conveniences. The popular Beatrixpark is also just a few minutes away.

Accessibility is excellent. The Zuid/WTC train and metro station (including the North/South metro line) is within walking distance and provides a fast connection to Schiphol Airport. By car, the A10 ring road can be reached within minutes. Parking is arranged through a permit system, allowing for two permits per household.
Layout:

Elegant communal entrance with both a lift and staircase.

Third Floor:
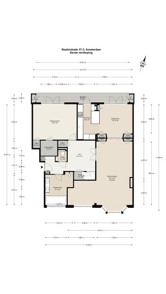
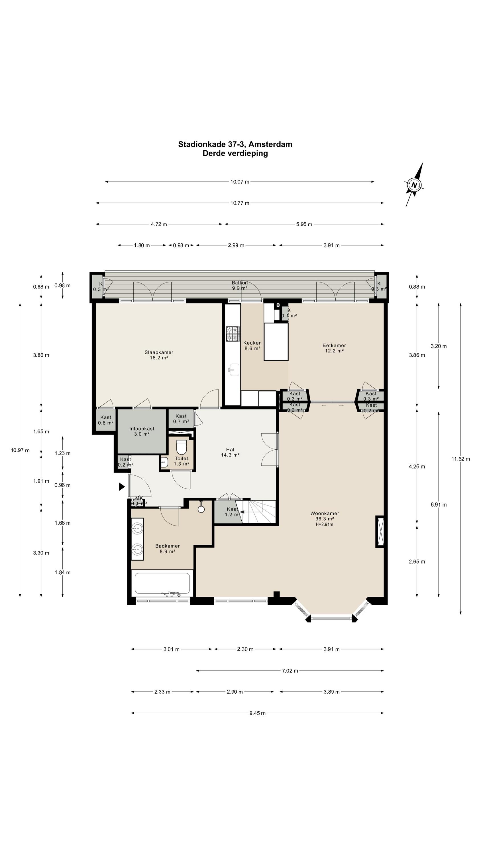
Spacious entrance with ample storage and access to the bathroom, fully renovated in 2025. The bathroom features a double sink, bathtub with shower, and a generous walk-in shower. The toilet is separate. From the entrance, a hallway leads to all rooms. Glass double doors open into the large L-shaped living room at the front of the apartment. This bright and inviting space includes a charming bay window and built-in cabinets on both sides. Original en-suite doors provide access to the dining room and the newly renovated kitchen (2025). This stylish open-plan kitchen features a central island, dishwasher, oven, microwave, and induction hob, with abundant storage throughout. French doors from the dining area open onto a spacious north-facing balcony, which can also be accessed from the master bedroom. The master bedroom, located at the rear, includes a walk-in closet, built-in storage, and large doors letting in plenty of natural light.

Fourth Floor:
Landing with a separate toilet and access to all rooms. At the front, the second bedroom includes a built-in wardrobe. Adjacent is a large (laundry) room with connections for a washer and dryer. At the rear is the fourth bedroom, which includes an en-suite bathroom equipped with a walk-in shower and washbasin with vanity. French doors lead out to the expansive rooftop terrace (approx. 32 m²).

Attic Floor:
Landing with access to two additional rooms. A generous bedroom with built-in wardrobes and a washbasin with marble countertop and vanity unit. There is also an additional (bed)room with built-in storage. Multiple skylights and exposed wooden beams add character and warmth to this top floor. A spacious storage room, concealed behind a sliding panel in the wardrobe wall, is one of the many practical features of this home.

The entire apartment is fitted with UTP data network connections in every room, beautiful wooden flooring, and double glazing throughout.

Key Features:
- Apartment rights: 193.6 m² (according to NEN-2580 measurement standards)
- Six bedrooms
- Two bathrooms
- Spacious balcony and rooftop terrace
- Intercom system on both third and fourth floors
- UTP data network connections in all rooms
- Ample storage throughout
- Bathroom, kitchen, and rooftop terrace renovated in 2025
- Active Homeowners' Association (VvE); monthly service charges: €416
- Professionally managed by Minerva Vastgoed Beheer
- VvE consists of 8 members
- Long-term maintenance plan (MJOP) in place
- Leasehold (erfpacht) paid off until February 15, 2056; General Provisions 1994 apply
- Current leasehold period runs from August 16, 2001 to February 15, 2056
- Timely conversion to perpetual leasehold has been arranged
- District heating system; monthly advance payment of €158.33 (heating and hot water)
- Transfer of ownership in consultation

This information has been compiled by us with the utmost care. However, no liability is accepted for any incompleteness, inaccuracy, or otherwise, nor for the consequences thereof. All stated dimensions and surface areas are indicative. Buyers are responsible for conducting their own due diligence on all matters that are of importance to them. With regard to this property, the estate agent acts on behalf of the seller. We advise you to engage a qualified (NVM) estate agent to assist you with the purchasing process. If you have specific requirements or wishes regarding the property, we recommend communicating these in a timely manner to your purchasing agent and conducting (or having conducted) independent research. If you choose not to engage a professional representative, you are considered legally competent to oversee all matters of importance yourself.

Features

Transfer of ownership
price
€ 1.650.000 k.k.
Status
verkocht onder voorbehoud
Acceptance
in overleg
Construction
Kind of house
Bovenwoning
Building type
dubbel bovenhuis
Construction period
1932
Energy rating
B
Roof type
samengesteld dak
Bedrooms
6
Bathrooms
2
Surface Areas And Volume
Living area
194 m2
Other indoor space
1 m2
Exterior space attached to the building
43 m2
Volume in cubic meters
672 m3
Plot size
622 m2
facilities
Mechanische ventilatie
Tv kabel
Lift
Natuurlijke ventilatie
Aan water
Aan rustige weg
In woonwijk
Vrij uitzicht
Aan vaarwater
Baerz & Co Property Brochure

Brochure

Information / Viewing request

Videos

Video Stadionkade 37 3

Photos

Floor Plans