Ons kantoor is lid van Baerz & Co Luxury Homes; een internationaal platform dat exclusieve woningmakelaars met elkaar verbindt. Neem contact op met ons secretariaat voor meer informatie over het landelijke aanbod, waarvan u hieronder een selectie kunt bekijken.

Villa for sale in BERGEN (NH)

BERGEN (NH) Dorpsstraat 27 - 1861 KT The Netherlands


Angeline Croonen profile image
Angeline Croonen
Real Estate Agent
+31 (0)72 743 32 44
info@croonmakelaars.nl

Croon Makelaars
Breelaan 41
1861 GD Bergen
NETHERLANDS
+31 (0)72 743 32 44
www.croonmakelaars.nl
info@croonmakelaars.nl

Living area
274m2
Plot size
585m2
Bedrooms
6

Description

In a beautiful location on Dorpsstraat, surrounded by greenery and within walking distance of the town center, you will find this surprisingly spacious and energy-efficient home with an attached annex and no fewer than 29 solar panels. The house offers generous living space and an abundance of natural light, making it an ideal family home.

Upon entering from Dorpsstraat, you step directly into the spacious kitchen-diner. This open kitchen is equipped with modern built-in appliances and a cooking island, seamlessly connected to the dining area. Large windows make this a wonderfully bright and inviting space. From here, you also have access to the basement, which provides additional storage.

Adjacent to the kitchen is the cozy living room with a wood-burning stove, windows on all sides, and French doors leading to the garden. The wooden details and warm atmosphere make this an inviting place to relax—whether in winter by the fireplace or in summer with the doors open to the garden. A practical storage cupboard can be found under the stairs.

On the ground floor, there is also a second hallway, which features a cloakroom, meter cupboard, an additional door to the garden, and access to the laundry and storage room. Here, the underfloor heating begins, which runs throughout the entire ground floor.

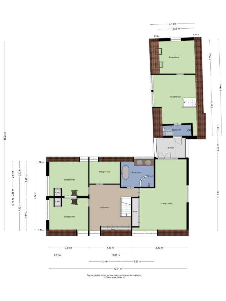
The upper floor offers a spacious landing with high ceilings and built-in eaves storage. The generous master bedroom features a small balcony, and the luxurious bathroom boasts double sinks, a walk-in shower, a toilet, a bathtub, and underfloor heating. In addition, there is a walk-in closet and two more bedrooms, divided by a sliding door, each with its own mezzanine.

On the other side of the house, you will find the former atelier, now used as a guesthouse with a kitchenette and sleeping area. The roof has been insulated, and the upper floor is beautifully light and spacious.

Next to the house is a wooden shed with electricity, large enough to accommodate a car (doors still to be fitted). At the front of the property, along Dorpsstraat, there is a parking space for up to four cars.

Features

Transfer of ownership
price
€ 1.595.000 k.k.
Status
Verkocht onder voorbehoud
Acceptance
in overleg
Construction
Kind of house
Villa
Building type
vrijstaande woning
Construction period
1882
Energy rating
A
Roof type
mansarde dak
Bedrooms
6
Surface Areas And Volume
Living area
274 m2
Other indoor space
1 m2
Exterior space attached to the building
9 m2
Volume in cubic meters
1019 m3
Plot size
585 m2
facilities
Mechanische ventilatie
Dakraam
Rookkanaal
In centrum
Beschutte ligging
In bosrijke omgeving
Baerz & Co Property Brochure

Brochure

Information / Viewing request

Videos

Video Dorpsstraat 27

Photos