Baerz & Co is een landelijk samenwerkingsverband van zorgvuldig geselecteerde boutique luxury makelaars. Samen vormen wij één netwerk, met één gedeeld aanbod. De woningen die u op onze website ziet, zijn afkomstig van alle aangesloten kantoren binnen Baerz & Co. Daardoor is niet ieder object rechtstreeks door ons kantoor in verkoop, maar door een gespecialiseerde collega binnen ons netwerk. Heeft u een woning gevonden die u aanspreekt en wilt u meer informatie? Dan brengen wij u graag persoonlijk in contact met de betreffende verkoopmakelaar, zodat u direct en zorgvuldig wordt begeleid.

BERGHEM
Waatselaarstraat 3 - 5351 NP
Netherlands

€3,595,000
Living Area
360m2
Plot Size
42865m2
Bedrooms
3

Description

Complete equestrian accommodation including a detached house, flat, office area, a riding hall with indoor arena and a total of 31 horse boxes, an outdoor arena, covered treadmill, lunging circle, several paddocks, pasture, a storage/field barn and a detached shed.

All this is situated on a spacious plot of over 4 hectares and offers plenty of opportunities for the professional horse lover!

HOUSE
The detached house includes an attractive living room, living kitchen, utility room and a cellar on the ground floor. The 1st floor has 3 generous bedrooms and a spacious bathroom. An attic space is located on the 2nd floor.
The surrounding garden is beautifully landscaped and equipped with lawn, planting, trees and several terraces.

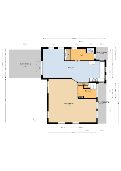
Ground floor:
The entrance hall features PVC flooring in herringbone pattern, partly brickwork/partly stucco walls and a stucco ceiling.
The hall provides access to the living room, meter cupboard and via a fixed staircase there is access to the 1st floor. The hall has a PVC floor in herringbone pattern, partly masonry/ partly stucco walls and a stucco ceiling. The hall provides access to the living room, meter cupboard and via a fixed staircase there is access to the 1st floor. The spacious living kitchen is also equipped with the same PVC floor in herringbone pattern. The walls and ceiling have been plastered. The kitchen layout is in a U-shape with a storage island. The kitchen is further equipped with a dishwasher, combination microwave oven, sink, 5-burner gas hob and fridge. From the kitchen, there is access to the cellar. The cellar is fully tiled and equipped with a cuckoo and a window. There are fixed shelves and a wooden staircase. A hatch provides access to the space under the house. The practical utility room is partly tiled and the floor is covered with a tiled floor which has underfloor heating. Practical sliding cupboards provide storage space. This is where the central heating combi boiler, the underfloor heating unit and the connections for the washing equipment are located. From the utility room, there is access to the toilet room and the yard. The toilet room is fully tiled and further equipped with a hand basin and a floating toilet.

1st floor:
The generous landing provides access to 3 spacious bedrooms and a bathroom. Bedroom I is carpeted, with sprayed walls and a sprayed ceiling. From this room, a fixed staircase provides access to the storage attic. The room further features a practical built-in wardrobe. Bedroom II is also finished with carpeted floors, sprayed walls and a sprayed ceiling. Fixed sliding wardrobes provide storage space. The spacious bathroom is fully tiled and further equipped with a bathtub, walk-in shower, washbasin with cabinet and a design radiator. The toilet room is fully tiled and equipped with a floating toilet. The very spacious master bedroom was formerly divided into two bedrooms. This is relatively easy to realise again. The room is finished with carpeting, spachtelputz walls and a sprayed ceiling. A practical closet and sliding wardrobes provide storage space. Many windows provide plenty of natural light.

Garden:
The garden surrounding the house is beautifully landscaped and well maintained. The garden is laid out with borders with perennials, trees, lawn and several terraces. At the front is a terrace, at the rear the terrace has a very beautiful and attractive canopy. This canopy is made of oak and has a glass wall. The roof is covered with reeds. The terrace offers beautiful views of the meadows. In short, a lovely place to be! A little further on is an aviary and another covered terrace. From here, too, there is a beautiful view of the meadows.

EQUESTRIAN ACCOMMODATION
The equestrian accommodation includes a detached riding hall with an indoor arena (approx. 20mtr. x 60mtr), a horse stable with a reception area and a total of 31 horse boxes divided over 2 stable areas, an office area, workshop and an adjoining flat.

The stable section on the left side is equipped with 16 horse boxes. These stalls have partly hardwood / partly powder-coated and partly galvanised front walls. The partitions are of masonry and partly occupied. The doors the front walls are hinged. 2 stalls are equipped with partly plastic / partly galvanised front and partition walls and sliding doors. There is also 1 pony stall. There are 2 washing areas and a solarium. The washing areas are equipped with hot and cold water supply. From the stable area, there is access to a hall where the 2 saddle rooms are located. From this hall, there is also access to the reception area and indoor arena. The spacious reception area is finished with a tiled floor, part masonry/part stucco walls and a system ceiling. There is a toilet block consisting of a toilet room, disabled toilet and a portal with 2 washbasins. There is also a complete kitchen. The kitchen is equipped with an oven, combination microwave oven, dishwasher, built-in coffee maker, sink and hob. n the reception area, the meter cupboard is located. This is where the central heating combi boiler is located. The room also has an alarm system. From the reception area, there are lovely views of the indoor arena. French doors provide access to the yard. The adjoining indoor arena (approx. 20mtr. x 60mtr.) is equipped with an ebb and flow floor and a hardwood arena surround (Horsmans). A skylight in the ridge and windows in the end wall provide natural light and ventilation. Furthermore, the arena is equipped with a mirror wall. A rolling door at the rear wall provides access to the yard. From the indoor arena, there is access to the stable area on the right. This stable area has 13 horse stalls. These stalls (approx. 4mtr. x 3mtr.) are fitted with partly powder-coated / partly galvanised and hinged doors. The stalls are also equipped with an exterior hatch. There is also a tack room, washing area and solarium here. From this stable area, there is access to a canteen. This canteen is finished with laminate flooring and a system ceiling. The canteen has a separate central heating boiler. French doors on the rear elevation provide access to the yard.

Office area:
An office area with storage, workshop and multi-purpose room and a flat are located at the front of the building. The office area has a PVC floor, stucco walls and a system ceiling. There is also air conditioning. Large windows provide plenty of natural light and practical views of the entrance gate and car park. The storage room is equipped with the sprinkler pump for the rain slope, meadows and garden. It also houses the inverter for the solar panels (81 units). The workshop with concrete floor is equipped with fixed cupboards and the connections for the washing equipment. A fixed staircase provides access to the attic space. The multi-purpose room, currently used as a gym, has a PVC floor, partly masonry / partly stucco walls and a system ceiling. The connection for the central heating boiler serving the gym and the flat is located here. From this room there is access to the flat and a fixed staircase provides access to the attic space.

Flat:
The flat features a private entrance. The flat is further equipped with a living room with open kitchen, a bedroom with walk-in wardrobe, utility room bathroom and another bedroom is situated on the 1st floor. The flat also has its own little garden. The flat is very suitable for use as a groom's residence or carer's home, for example.

The yard is further equipped with an outdoor arena, covered horse walker, a lunging circle, several paddocks, a storage/field barn, shed, manure heap, pasture and a detached shed. There is ample parking space for stabling trailers and trucks, among other things. The yard can be closed with an electric opening gate. The storage/field shed with open front is constructed of partly masonry / partly sheet piling with wooden rafters and a sheet piling roof.
The covered horse walker (Mill King) is suitable for 4 horses and has a paved floor with sand and a fence of windbreak netting. The roof is covered with corrugated iron. The detached barn is constructed of masonry walls with steel rafters and a sheet pile roof. The shed is further equipped with a glass front wall/windbreak and a concrete floor. Power is available. This barn is ideal for storing hay/straw. The manure hall has a concrete floor and walls. The paddocks (4 pcs) located near the pasture are fenced with wood.
The meadows are fenced with wood and have practical intermediate paths. There are also water connections for drinking water. The 2 paddocks located a little further away have a sandy soil and a wooden fence.
The lunging circle is equipped with an ebb and flow riding surface and a wooden fence. The shed contains a 2nd sprinkler pump for this longe arena. The detached shed is currently in use as storage space, but is of course also suitable for various other purposes. The facades are boxed and insulated. The roof is also insulated and fitted with sandwich panels. 2 French doors and a rolling door provide access.
The adjacent paddocks (2 pcs) are equipped with a wooden fence. The outdoor arena (approx. 25mtr. x 65mtr.) has a sandy floor with sprinkler system. The arena is fenced off with a beech hedge and is also equipped with lighting.

DETAILS
- The property is connected to gas, water, electricity and mains drainage.
- The property has an alarm system with camera surveillance.
- The thatched roof of the house was renewed about 10 years ago.
- The reception area, riding hall and 2nd stable section on the right were newly built in approx. 2012. The left stable section
and the office space etc. were rebuilt at that time.
- The roof of the stable area on the left side was renewed.
- The property is connected to gas, water, electricity and sewerage.
- The property is equipped with an alarm system with camera surveillance.
- About 10 years ago, the thatched roof of the house was renewed.
- The reception area, riding hall and 2nd stable section on the right were newly built in approx. 2012. The left stable section
and the office space etc. were rebuilt at that time.
- The roof of the stable area on the left side was renewed.
- A flat is located at the front, which is perfect as groom's quarters.
- The reception area and office space have plastic window frames. The riding hall is fitted with aluminium
window frames.
- The property is zoned ‘Agrarian’.
- The roof of the stable has 81 solar panels.
- The applicable environmental permit for the company concerns the notification under the Besluit landbouw milieubeheer
dated 22-09-2009 (currently: Bal notification). According to this environmental permit, 20 adult horses are allowed on the farm.

Features

Solar panels
Alarm system
Air conditioning
Transfer of ownership
Asking Price
€ 3.595.000
Status
beschikbaar
Acceptance
in overleg
Construction
Kind of house
Villa
Building type
vrijstaande woning
Construction period
1995
Roof type
schilddak
Bedrooms
3
Bathrooms
1
Surface Areas And Volume
Living Area
360 m2
Other indoor space
9 m2
External storage space
3293 m2
Volume in cubic meters
1440 m3
Plot Size
42865 m2
Facilities
Alarminstallatie
Airconditioning
Glasvezel kabel
Zonnepanelen
Natuurlijke ventilatie
Aan rustige weg
Vrij uitzicht
Open ligging
Landelijk gelegen
Baerz & Co Property Brochure

Brochure

Videos

Floor Plans

KockvanBenthem Makelaars

Bisschopstraat 18
7571 CZ Oldenzaal

bk@kvbm.nl
+31 541 52 20 22

www.kvbm.nl

Information / Viewing request

Bert Kock profile image
Bert Kock
Real Estate Agent

Buying a Luxury Property in Berghem

Berghem welcomes those seeking a refined lifestyle defined by privacy, rich heritage, and unrivaled access to countryside amenity. This community offers international buyers exclusive real estate, personalized advisory, and a discreet yet vibrant way of living.