Baerz & Co is een landelijk samenwerkingsverband van zorgvuldig geselecteerde boutique luxury makelaars. Samen vormen wij één netwerk, met één gedeeld aanbod. De woningen die u op onze website ziet, zijn afkomstig van alle aangesloten kantoren binnen Baerz & Co. Daardoor is niet ieder object rechtstreeks door ons kantoor in verkoop, maar door een gespecialiseerde collega binnen ons netwerk. Heeft u een woning gevonden die u aanspreekt en wilt u meer informatie? Dan brengen wij u graag persoonlijk in contact met de betreffende verkoopmakelaar, zodat u direct en zorgvuldig wordt begeleid.

LEIDEN
Dwars Koornbrugsteeg 8 - 2311 EL
Netherlands

Bert Kock profile image
Bert Kock
Real Estate Agent
€900,000 k.k.
Living Area
173m2
Plot Size
204m2
Bedrooms
3

Description

This unique canal house is nestled behind the historic facade on one of Leiden's most distinctive canals.

This monumental mansion dates from around 1650 and combines centuries-old charm with a surprising amount of living space, spread over several floors. Its location on the canal and waterway underscores its authentic character, while the roof terrace offers a rare and very pleasant outdoor space in the heart of the city center. Original details, playful changes in level, and the spacious layout make this apartment a unique home for those who appreciate history and urban living.

The apartment is part of a historic building and has been carefully lived in and maintained over the years. Positive adjustments and improvements have been made with respect for the building's character, adding functionality and comfort without detracting from its historic appearance.

The location is undeniably excellent. Dwars Koornbrugsteeg is situated in the heart of Leiden's city center, a stone's throw from Haarlemmerstraat, Breestraat, and Stadhuisplein. Museums such as the National Museum of Antiquities and Museum De Lakenhal, as well as Leiden's canals and courtyards, are within walking distance. The Parksoen and the canals also offer greenery and relaxation close to home. Leiden Central Station is easily accessible by bike or on foot, and cities such as The Hague, Amsterdam, and Schiphol Airport are easily accessible via the A4 and A44 motorways.

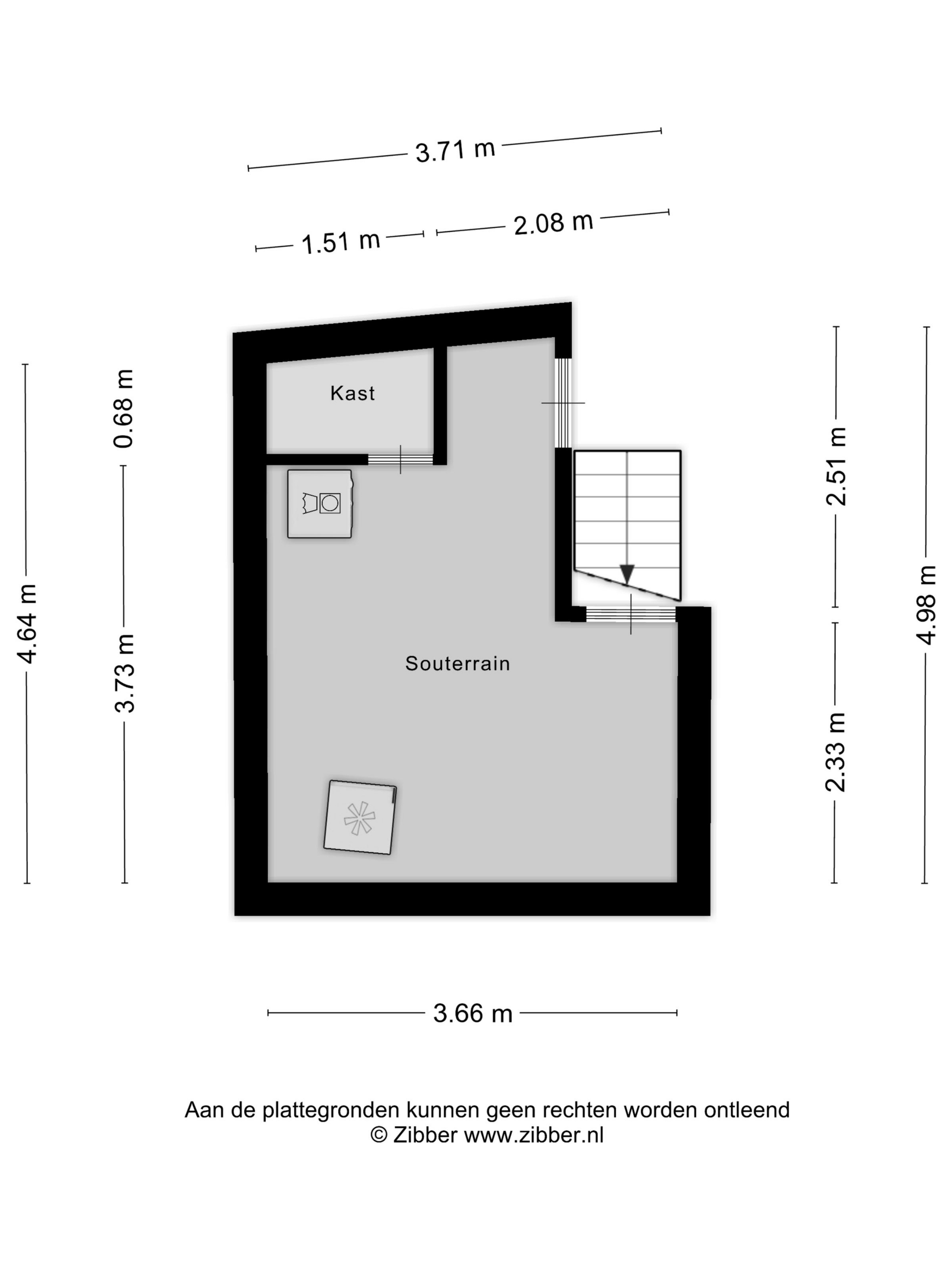
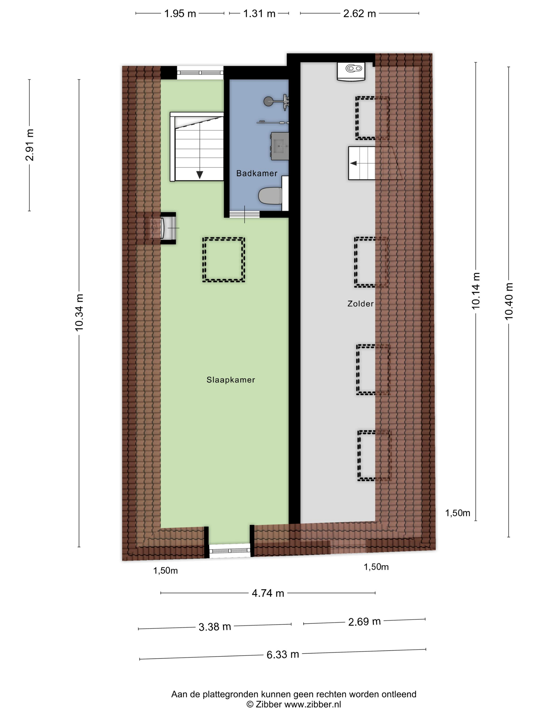
The layout is playful and spacious, spread over several levels. A private entrance at street level leads to the basement, which offers practical space and storage. The living floors contain the kitchen, several bedrooms, and bathrooms, connected by hallways and landings that create a pleasant flow throughout the home. On the top floor, there is a bedroom with direct access to the roof terrace, a wonderful spot offering privacy and views of the historic buildings. There is also a mezzanine that is ideal as a workspace, studio, or additional living space.

A rare opportunity to live in a historic building with spaciousness, outdoor space, and a prime location in the historic heart of Leiden.

SPECIAL FEATURES

- National monument (subsidy options available!)
- Protected cityscape
- Age clause applies
- Building inspection available
- The house will be converted into a single apartment by means of a Deed of Division

Features

Transfer of ownership
Asking Price
€ 900.000 k.k.
Status
beschikbaar
Acceptance
in overleg
Construction
Kind of house
Grachtenpand
Building type
tussenwoning
Construction period
1650
Roof type
samengesteld dak
Bedrooms
3
Bathrooms
3
Surface Areas And Volume
Living Area
173 m2
Other indoor space
35 m2
Exterior space attached to the buildinge
12 m2
Volume in cubic meters
350 m3
Plot Size
204 m2
Facilities
Mechanische ventilatie
Tv kabel
Rookkanaal
Glasvezel kabel
Aan water
In centrum
In woonwijk
Vrij uitzicht
Baerz & Co Property Brochure

Brochure

Videos

Floor Plans

KockvanBenthem Makelaars

Bisschopstraat 18
7571 CZ Oldenzaal

bk@kvbm.nl
+31 541 52 20 22

www.kvbm.nl

Information / Viewing request

Bert Kock profile image
Bert Kock
Real Estate Agent

Buying a Luxury Property in Leiden

Leiden offers exceptional heritage, dynamic culture, and curated services, creating an appealing environment for international residents. With refined homes, vibrant academia, and discreet luxury, this canal city delivers a sophisticated lifestyle for a discerning, global community.