Baerz & Co is een landelijk samenwerkingsverband van zorgvuldig geselecteerde boutique luxury makelaars. Samen vormen wij één netwerk, met één gedeeld aanbod. De woningen die u op onze website ziet, zijn afkomstig van alle aangesloten kantoren binnen Baerz & Co. Daardoor is niet ieder object rechtstreeks door ons kantoor in verkoop, maar door een gespecialiseerde collega binnen ons netwerk. Heeft u een woning gevonden die u aanspreekt en wilt u meer informatie? Dan brengen wij u graag persoonlijk in contact met de betreffende verkoopmakelaar, zodat u direct en zorgvuldig wordt begeleid.

'S-HERTOGENBOSCH
Sint Janskerkhof 19 - 5211 LA
Países Bajos

€825,000
Superficie habitable
125m2
Tamaño del terreno
N/A
Dormitorios
3

Descripción

El apartamento 's-Hertogenbosch se ofrece en un enclave exclusivo de la ciudad, situado en Sint Janskerkhof junto a la icónica Catedral de San Juan. Este amplio piso superior cuenta con 125 m² y se distingue por su carácter y su distribución cuidadosamente estudiada. La propiedad dispone de tres dormitorios y una inusual terraza en la azotea, permitiendo disfrutar de la proximidad inmediata al centro histórico de la ciudad, sin renunciar a una sorprendente tranquilidad.

Al entrar por un vestíbulo privado decorado con baldosas Winckelmans, se percibe una atmósfera de refinada discreción. El salón en esquina enmarca impresionantes vistas a la Catedral de San Juan y a la plaza circundante, evocando sutilmente el ritmo de la vida local. La cocina semiabierta se integra, manteniendo la conexión con el espacio de estar sin invadirlo. La estancia adyacente ofrece flexibilidad para utilizarse como despacho o dormitorio de invitados.

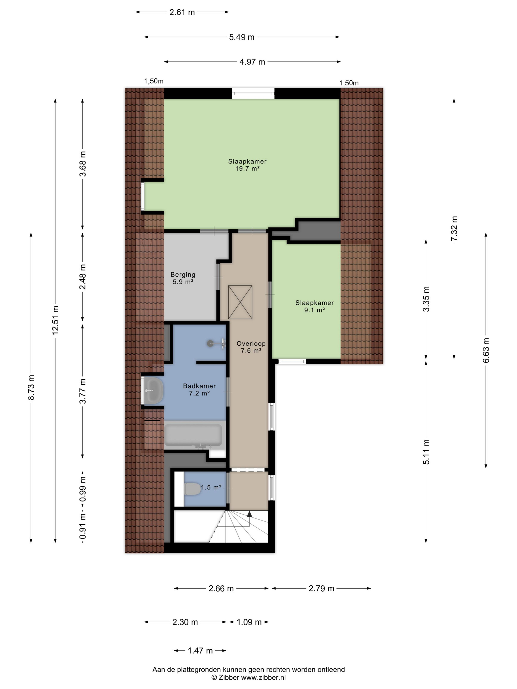
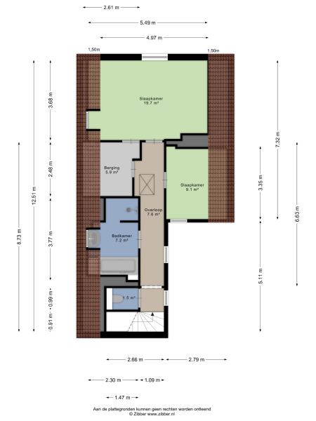
En la planta superior, dos dormitorios incluyen una suite principal con vestidor. El baño, renovado en 2011, es espacioso y dispone de bañera, ducha separada y vistas a la catedral. Un segundo aseo se encuentra aparte. La calificación energética C se debe al aislamiento de paredes y tejado, doble acristalamiento y calefacción central. El estacionamiento se ofrece mediante autorización o en el garaje de St. John’s cercano. Este apartamento en venta en 's-Hertogenbosch está rodeado de árboles monumentales y adoquines, a pocos pasos de destacados lugares culturales como Parade, Markt y Bossche Broek, ofreciendo un equilibrio perfecto entre vitalidad urbana y patrimonio.

Características

Transferencia de propiedad
Precio solicitado
€ 825.000
Estado
beschikbaar
Aceptación
in overleg
Construcción
Tipo de casa
Bovenwoning
Tipo de edificio
appartement
Periodo de construcción
1957
Calificación energética
C
Tipo de tejado
dwarskap
Dormitorios
3
Baños
1
Superficies y Volumen
Superficie habitable
125 m2
Otro espacio interior
2 m2
Espacio exterior adjunto al edificio
7 m2
Volumen en metros cúbicos
419 m3
Instalaciones
Dakraam
Aan rustige weg
In centrum
Vrij uitzicht
Beschutte ligging
Baerz & Co Property Brochure

Folleto

Planos

KockvanBenthem Makelaars

Bisschopstraat 18
7571 CZ Oldenzaal

bk@kvbm.nl
+31 541 52 20 22

www.kvbm.nl

Solicitud de información / Visita

Bert Kock profile image
Bert Kock
Real Estate Agent