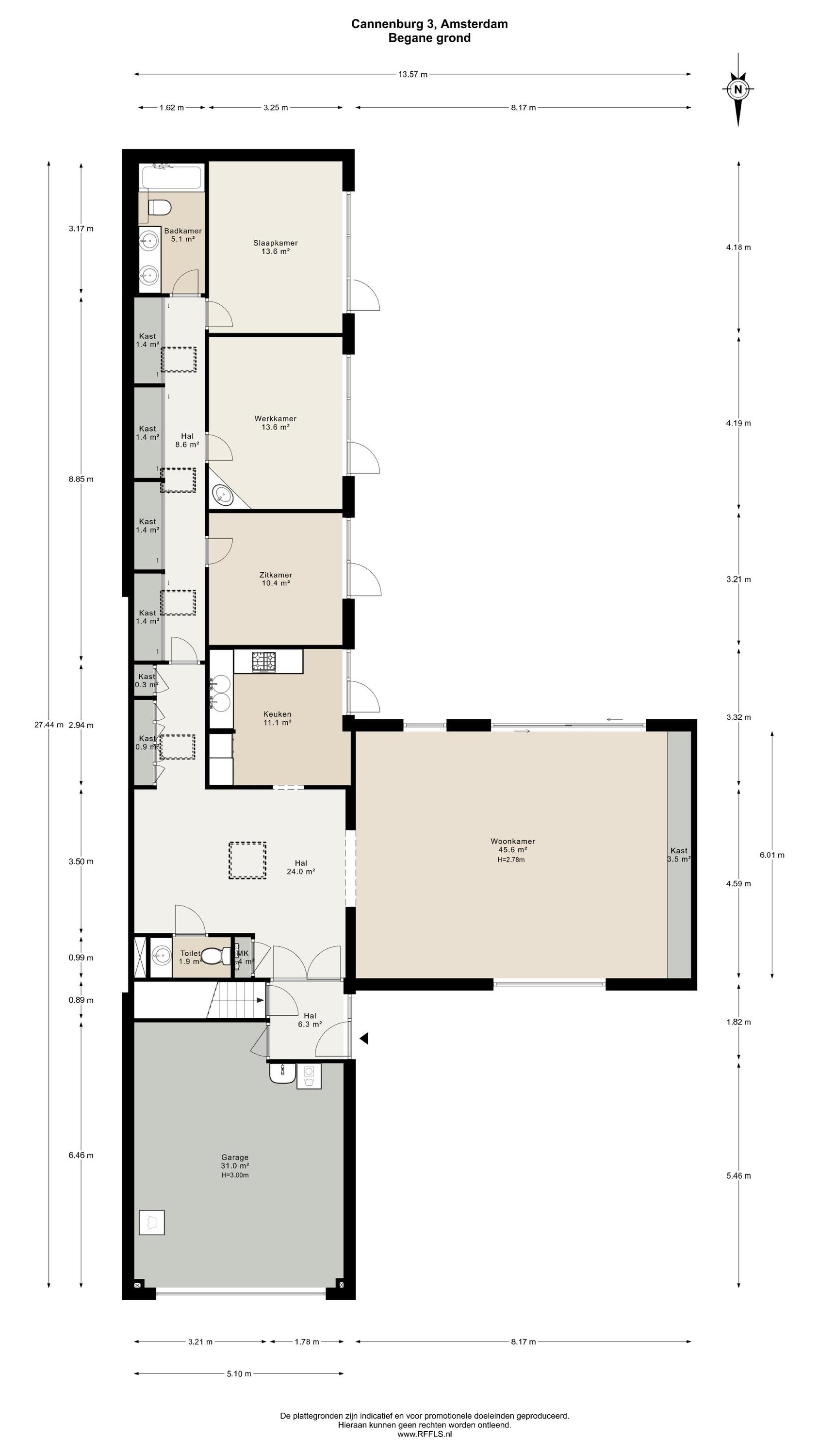
Esta vivienda familiar en Amsterdam Buitenveldert ofrece un equilibrio armonioso de amplitud, privacidad y luz en aproximadamente 159 m² de espacios habitables. La casa se sitúa en una tranquila zona residencial, rodeada de zonas verdes y cuenta tanto con un generoso jardín delantero como con un jardín trasero orientado al sur, sumando unos 179 m². Su amplia distribución incluye un luminoso salón, tres cómodos dormitorios y un baño con bañera. El aire acondicionado proporciona confort tanto en el salón como en el dormitorio principal. Un sótano versátil de 37 m², actualmente dispuesto como una segunda sala de estar con barra, amplía las opciones de relax o trabajo.
El diseño cuidadoso de la vivienda incorpora una cocina completamente equipada con electrodomésticos de alta gama, armarios empotrados en el pasillo para almacenaje y acceso directo al jardín desde cada dormitorio. El garaje privado, con puerta eléctrica y capacidad para dos coches, aporta comodidad en la vida diaria. El doble acristalamiento y la ventilación mecánica aseguran bienestar durante todo el año.
Situada en el codiciado barrio de Buitenveldert, esta propiedad le sitúa a pasos de las boutiques y restaurantes de Gelderlandplein, a tan solo 100 metros del International School, y con fácil acceso al ritmo urbano a través de Station Zuid y la A10. Con Amstelpark y Amsterdamse Bos a pocos minutos, brinda proximidad tanto a la ciudad como a entornos verdes. Familias, profesionales y compradores internacionales agradecerán la conexión con el distrito financiero de Zuidas y los accesos directos a Schiphol y otros destinos. Esta exclusiva vivienda familiar en venta en Amsterdam Buitenveldert reúne amplitud, serenidad y el pulso de la ciudad.
Explora Ámsterdam con Baerz, tu asesor y buscador personal de propiedades de confianza
Navegar en el mercado de lujo de Ámsterdam exige un profundo conocimiento local, discreción y habilidad negociadora. Los mejores asesores ofrecen acceso a listados privados, aclaran las complejidades legales y detectan oportunidades en un contexto donde rara vez afloran al público. Los equipos consultores realizan auditorías exhaustivas y representación personalizada, fortaleciendo su posición en negociaciones, garantizando transacciones impecables y protegiendo su privacidad en cada etapa.
Evite errores comunes
Los compradores internacionales a menudo desperdician tiempo valioso navegando por anuncios duplicados, desactualizados o engañosos, especialmente porque casi el 30% de las propiedades de lujo nunca aparecen en el mercado.
Los agentes del vendedor representan los intereses del vendedor, no los suyos, y simplemente solicitar información sobre una propiedad puede hacer que las agencias lo registren como su “cliente” sin su consentimiento.
Con Baerz Property Finders & Advisors, evita completamente estos problemas.
Actuamos únicamente en su nombre, ofreciendo representación independiente, orientación transparente y acceso a todas las propiedades disponibles, incluidas oportunidades privadas y fuera de mercado que otros nunca ven.
¿Le gustaría saber cómo asegurar su propio Asesor Personal de Propiedades? Contáctenos para descubrir cómo podemos representar sus intereses y abrirle el mercado completo.