Baerz & Co is een landelijk samenwerkingsverband van zorgvuldig geselecteerde boutique luxury makelaars. Samen vormen wij één netwerk, met één gedeeld aanbod. De woningen die u op onze website ziet, zijn afkomstig van alle aangesloten kantoren binnen Baerz & Co. Daardoor is niet ieder object rechtstreeks door ons kantoor in verkoop, maar door een gespecialiseerde collega binnen ons netwerk. Heeft u een woning gevonden die u aanspreekt en wilt u meer informatie? Dan brengen wij u graag persoonlijk in contact met de betreffende verkoopmakelaar, zodat u direct en zorgvuldig wordt begeleid.

AMSTERDAM
Tweede Helmersstraat 87 H - 1054 CE
Países Bajos

€1,350,000
Superficie habitable
124m2
Tamaño del terreno
N/A
Dormitorios
4

Descripción

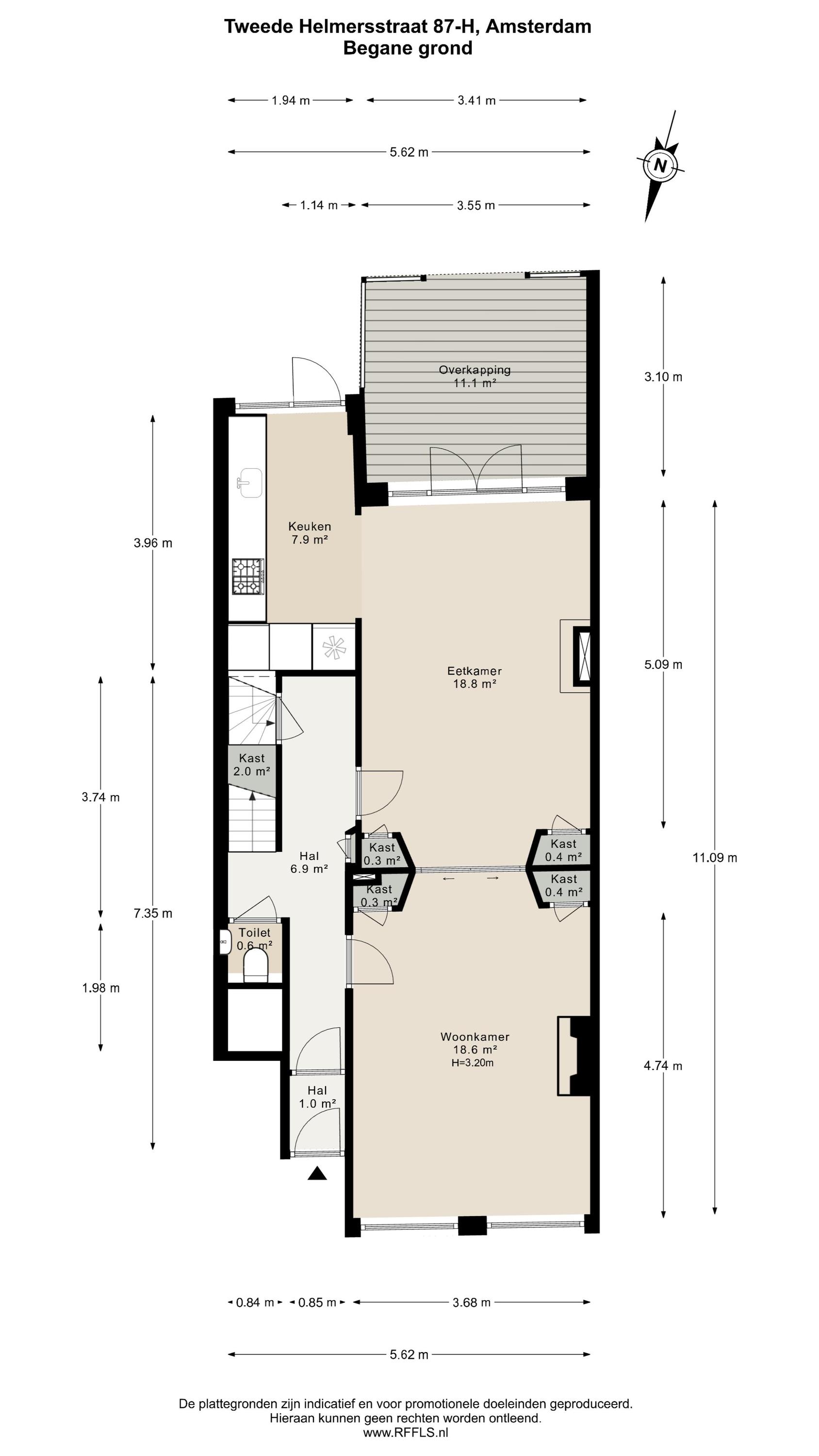
Este apartamento dúplex en planta baja en Ámsterdam combina el carácter clásico con el confort contemporáneo en el corazón de Helmersbuurt. Con una superficie de 124 m², la vivienda destaca detalles auténticos—vidrieras, molduras ornamentadas en el techo, chimeneas y paneles de madera—sin renunciar a las comodidades modernas. La generosa zona de estar y comedor en suite recibe abundante luz natural a través de grandes ventanales y puertas francesas, conectando de manera fluida con un jardín orientado al sureste de 61 m² que incluye una terraza cubierta. La cocina, abierta y elevada, aporta una sensación de amplitud y cuenta con roble oscuro, electrodomésticos integrados y acceso directo al jardín—perfecto para desayunos tranquilos o veladas llenas de ambiente.

En la planta superior, los cuatro dormitorios ofrecen flexibilidad para la vida familiar, el trabajo o la estancia de invitados. La suite principal dispone de balcón francés, armarios empotrados y detalles originales de época. El baño, amplio y de acabado lujoso, cuenta con bañera, doble ducha a ras del suelo y doble lavabo. En el sótano de 7,4 m², se encuentra un práctico espacio de almacenamiento junto al sistema de calefacción central.

Ubicado sobre terreno en propiedad en un edificio pequeño de solo tres unidades, este dúplex ofrece acceso inmediato a comercios, restaurantes y centros culturales locales. La propiedad se encuentra bien comunicada tanto en transporte público como en coche, ofreciendo un entorno tranquilo pero céntrico con todos los servicios urbanos al alcance.

Explora Ámsterdam con Baerz, Tu Buscador y Asesor Personal de Propiedades de Confianza

Navegar en el mercado de lujo de Ámsterdam exige un profundo conocimiento local, discreción y habilidad negociadora. Los mejores asesores ofrecen acceso a listados privados, aclaran las complejidades legales y detectan oportunidades en un contexto donde rara vez afloran al público. Los equipos consultores realizan auditorías exhaustivas y representación personalizada, fortaleciendo su posición en negociaciones, garantizando transacciones impecables y protegiendo su privacidad en cada etapa.

Evita los errores comunes

Los compradores internacionales a menudo pierden tiempo valioso en listados en línea duplicados, desactualizados o engañosos, especialmente porque casi el 30% de las casas de lujo nunca aparecen en el mercado público. Los agentes del vendedor representan los intereses del vendedor, no los del comprador. Incluso solicitar información sobre una propiedad puede resultar en que un agente del vendedor te registre como su “cliente” sin tu consentimiento.
Con Baerz Property Finders & Advisors, evitas por completo todos estos errores. Trabajamos únicamente en tu nombre, ofreciendo representación independiente, orientación clara y acceso a todas las propiedades disponibles, incluidas oportunidades fuera del mercado que otros nunca llegan a ver.

¿Interesado en un Asesor Personal de Propiedades?

Te mostramos todas las casas disponibles en un solo lugar. No dudes en contactarnos para saber cómo podemos satisfacer tus necesidades y proteger tus intereses exclusivamente.

Características

Aire acondicionado
Transferencia de propiedad
Precio solicitado
€ 1.350.000
Estado
beschikbaar
Aceptación
in overleg
Construcción
Tipo de casa
Benedenwoning
Tipo de edificio
appartement
Dormitorios
4
Baños
1
Superficies y Volumen
Superficie habitable
124 m2
Otro espacio interior
7 m2
Espacio exterior adjunto al edificio
17 m2
Volumen en metros cúbicos
536 m3
Instalaciones
Mechanische ventilatie
Airconditioning
Natuurlijke ventilatie
Aan rustige weg
Baerz & Co Property Brochure

Folleto

Vídeos

KockvanBenthem Makelaars

Bisschopstraat 18
7571 CZ Oldenzaal

bk@kvbm.nl
+31 541 52 20 22

www.kvbm.nl

Solicitud de información / Visita

Bert Kock profile image
Bert Kock
Real Estate Agent

Comprar una propiedad de lujo en Ámsterdam

Ámsterdam ofrece un estilo de vida cosmopolita, definido por su legado histórico, su conectividad y un lujo discreto. Sus residentes disfrutan de una comunidad internacional vibrante, servicios a medida y una rica vida cultural. La fuerza de la ciudad reside en su fusión de historia, sofisticación y espíritu progresista.