Baerz & Co is een landelijk samenwerkingsverband van zorgvuldig geselecteerde boutique luxury makelaars. Samen vormen wij één netwerk, met één gedeeld aanbod. De woningen die u op onze website ziet, zijn afkomstig van alle aangesloten kantoren binnen Baerz & Co. Daardoor is niet ieder object rechtstreeks door ons kantoor in verkoop, maar door een gespecialiseerde collega binnen ons netwerk. Heeft u een woning gevonden die u aanspreekt en wilt u meer informatie? Dan brengen wij u graag persoonlijk in contact met de betreffende verkoopmakelaar, zodat u direct en zorgvuldig wordt begeleid.

DELFT
Oude Delft 47 - 2611 BC
Países Bajos

€2,950,000
Superficie habitable
543m2
Tamaño del terreno
301m2
Dormitorios
5

Descripción

Canal House Delft representa una oportunidad excepcional para habitar un Monumento Nacional catalogado en el emblemático corazón histórico de la ciudad. Esta propiedad ofrece aproximadamente 543 m² de espacio habitable tras una imponente fachada del siglo XVII, donde la monumentalidad original y el confort contemporáneo coexisten en armonía y serenidad.

Una reciente restauración preservó meticulosamente los detalles de época, incorporando materiales naturales, acabados orgánicos e innovaciones sostenibles como sistemas de bomba de calor y paneles solares. El resultado es una vivienda distintiva, con texturas táctiles y un clima interior excepcional, realzada por techos altos y elementos decorativos originales.

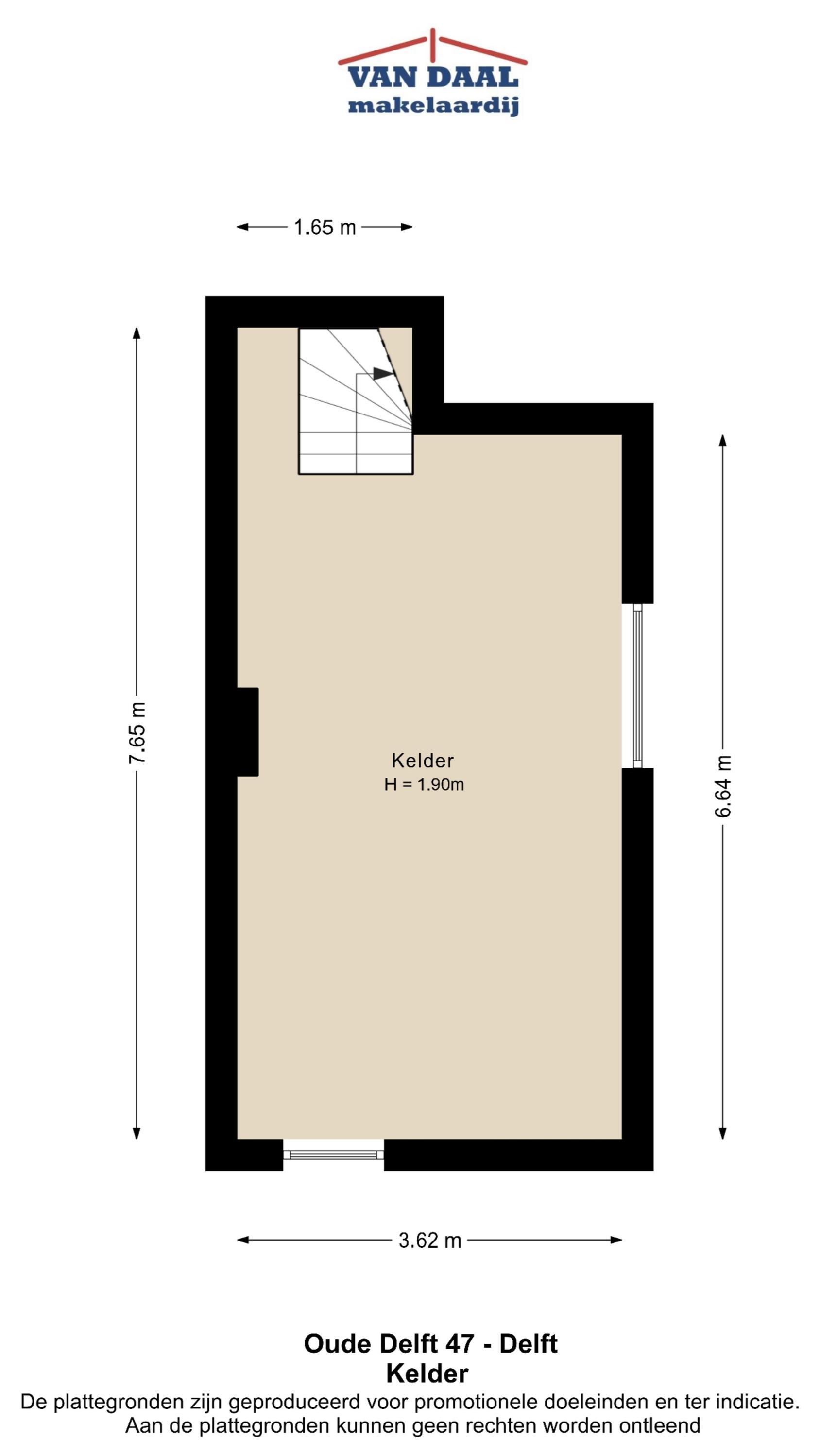
La planta baja recibe con un vestíbulo de mármol, elegantes espacios de oficina y una bodega abovedada que da paso a un jardín tropical de 100 m², con cobertizo de piedra y acceso privado y discreto a tres plazas de aparcamiento. La sala de jardín, con suelo radiante y paredes de acabado pictórico, une el interior y el exterior. La vida familiar y el entretenimiento confluyen en el amplio salón con suelos de roble y techos de cuatro metros de altura, y en la cocina Bulthaup situada en la parte trasera, equipada con electrodomésticos Gaggenau.

Cinco dormitorios se distribuyen en las plantas superiores, incluyendo una suite en entreplanta con baño de mármol, zona de bienestar con sauna y una luminosa buhardilla de uso flexible, todas beneficiadas por la orientación sur y la tranquilidad preservada de la propiedad. Con etiqueta energética B, avanzada seguridad y equipamiento técnico, esta casa de canal se presenta como una fusión poco habitual entre legado y lujo sostenible en el vibrante centro de Delft.

Explora Delft con Baerz, Tu Buscador y Asesor Personal de Propiedades de Confianza

Navegar el mercado exclusivo de Delft exige discreción y conocimiento experto. Los asesores proporcionan acceso a propiedades fuera de mercado, negociación estratégica y profundo entendimiento de las particularidades culturales y normativas locales. Su asesoría es esencial para quienes buscan oportunidades raras y transacciones fluidas.

Evita los errores comunes

Los compradores internacionales a menudo pierden tiempo valioso en listados en línea duplicados, desactualizados o engañosos, especialmente porque casi el 30% de las casas de lujo nunca aparecen en el mercado público. Los agentes del vendedor representan los intereses del vendedor, no los del comprador. Incluso solicitar información sobre una propiedad puede resultar en que un agente del vendedor te registre como su “cliente” sin tu consentimiento.
Con Baerz Property Finders & Advisors, evitas por completo todos estos errores. Trabajamos únicamente en tu nombre, ofreciendo representación independiente, orientación clara y acceso a todas las propiedades disponibles, incluidas oportunidades fuera del mercado que otros nunca llegan a ver.

¿Interesado en un Asesor Personal de Propiedades?

Te mostramos todas las casas disponibles en un solo lugar. No dudes en contactarnos para saber cómo podemos satisfacer tus necesidades y proteger tus intereses exclusivamente.

Características

Paneles solares
Transferencia de propiedad
Precio solicitado
€ 2.950.000
Estado
beschikbaar
Aceptación
in overleg
Construcción
Tipo de casa
Grachtenpand
Tipo de edificio
tussenwoning
Periodo de construcción
1653
Calificación energética
B
Tipo de tejado
zadeldak
Dormitorios
5
Baños
1
Superficies y Volumen
Superficie habitable
543 m2
Otro espacio interior
30 m2
Espacio exterior adjunto al edificio
5 m2
Espacio de almacenamiento externo
9 m2
Volumen en metros cúbicos
2417 m3
Tamaño del terreno
301 m2
Instalaciones
Zonnecollectoren
Zonnepanelen
Aan water
In centrum
Baerz & Co Property Brochure

Folleto

Vídeos

KockvanBenthem Makelaars

Bisschopstraat 18
7571 CZ Oldenzaal

bk@kvbm.nl
+31 541 52 20 22

www.kvbm.nl

Solicitud de información / Visita

Bert Kock profile image
Bert Kock
Real Estate Agent

Comprar una propiedad de lujo en Delft

Delft es conocida por su legado artístico, estilo de vida refinado y urbanismo de primer nivel. La comunidad atrae residentes e inversores sofisticados, y brinda residencias a medida, acceso a servicios de élite y conexiones internacionales.