Baerz & Co is een landelijk samenwerkingsverband van zorgvuldig geselecteerde boutique luxury makelaars. Samen vormen wij één netwerk, met één gedeeld aanbod. De woningen die u op onze website ziet, zijn afkomstig van alle aangesloten kantoren binnen Baerz & Co. Daardoor is niet ieder object rechtstreeks door ons kantoor in verkoop, maar door een gespecialiseerde collega binnen ons netwerk. Heeft u een woning gevonden die u aanspreekt en wilt u meer informatie? Dan brengen wij u graag persoonlijk in contact met de betreffende verkoopmakelaar, zodat u direct en zorgvuldig wordt begeleid.

VALKENBURG
Voorschoterweg 71 B - 2235 SG
Países Bajos

€1,175,000
Superficie habitable
162m2
Tamaño del terreno
655m2
Dormitorios
3

Descripción

Este chalet pareado en Valkenburg se sitúa directamente junto al agua, ofreciendo un entorno de vida tranquilo frente al canal en pleno corazón de la Randstad. La propiedad cuenta con 162 m² de interior refinado sobre una parcela de 655 m², integrados por un jardín diseñado por arquitecto y un embarcadero privado de diez metros sobre el Viejo Rin, lo que brinda acceso directo hacia Leiden y los lagos Kagerplassen. Se puede acceder desde el soleado patio trasero al agua, donde la navegación es parte de la vida diaria y el lago Valkenburg está a poca distancia a pie.

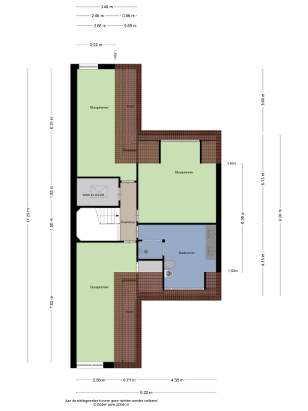
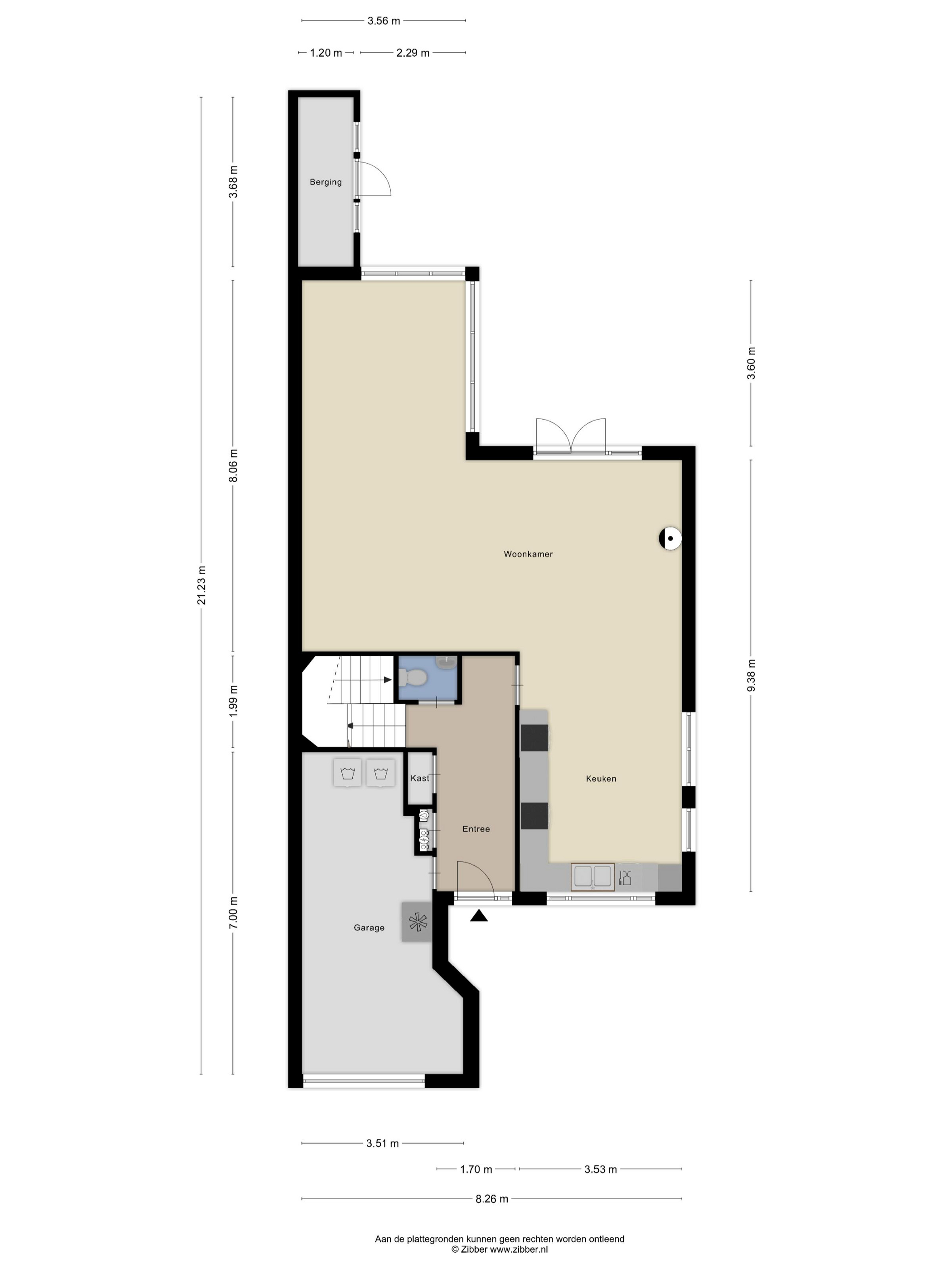
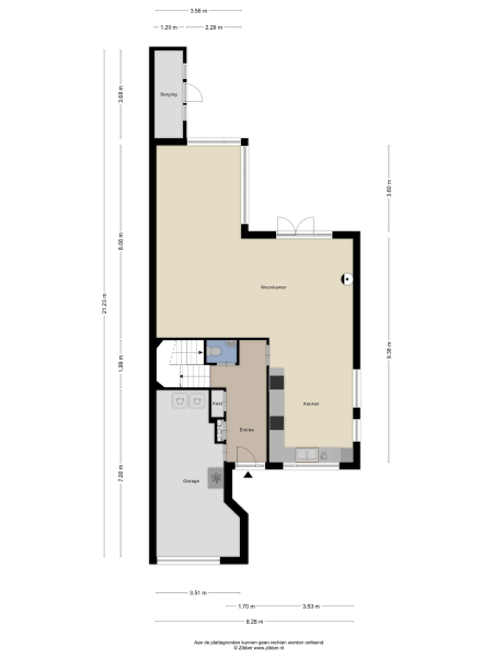
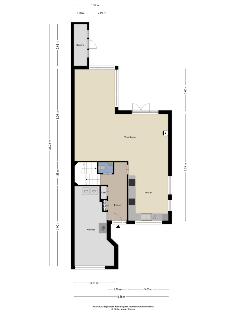
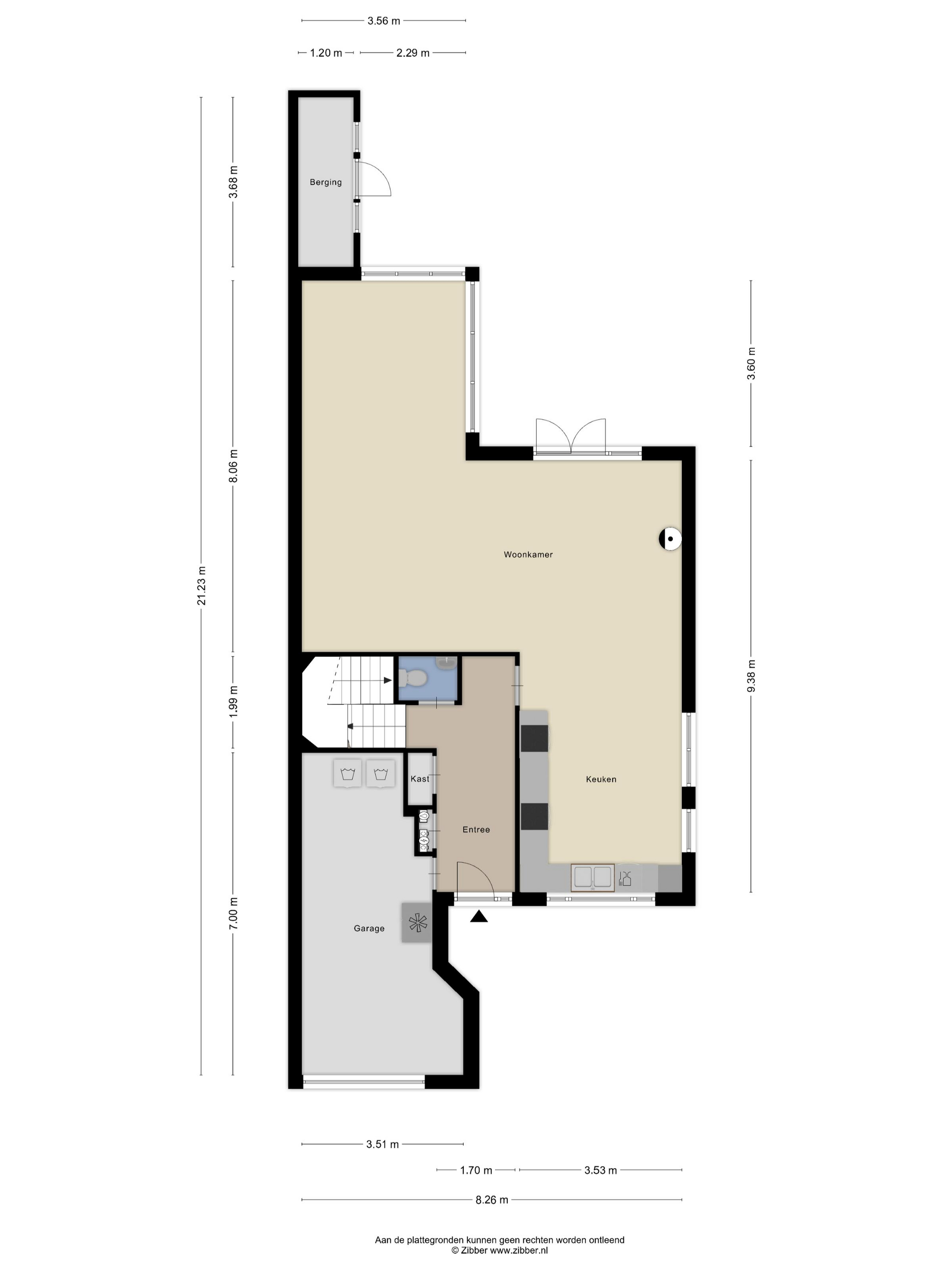
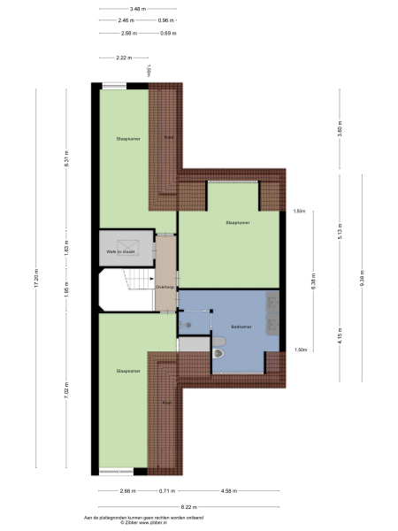
En el interior, la villa presenta un amplio vestíbulo que conduce a un luminoso salón. Los grandes ventanales y puertas francesas enmarcan las vistas al jardín y al agua, complementados por una chimenea de gas y calefacción por suelo radiante en toda la planta baja. La cocina ofrece tanto un espacio de trabajo como un punto de encuentro social, mientras que el garaje adjunto dispone de puerta eléctrica y conexiones de servicios dedicadas. En la planta superior, tres dormitorios y un baño de lujo renovado en 2022 con calefacción por suelo radiante y ducha a ras de suelo conforman la zona privada. Un vestidor y un generoso altillo de almacenamiento aportan flexibilidad, y la realización de un futuro cuarto dormitorio es totalmente viable.

Los jardines paisajísticos delantero y trasero ofrecen zonas de sol y sombra, enriquecidos por un sistema automático de riego, un cobertizo junto al agua y la privacidad del aparcamiento para tres coches en la propiedad. Con Certificado Energético B, acristalamiento HR++ y acabados seguros, la vivienda combina confort y tranquilidad. Esta villa de lujo en venta en Valkenburg se sitúa a pocos minutos del centro urbano de Leiden, cerca de colegios internacionales y a menos de veinte minutos de Ámsterdam, Schiphol y La Haya, perfectamente conectada para la vida familiar y profesional. Aquí, la vida se define por el espacio, la luz y la sutil presencia del agua.

Explora Valkenburg con Baerz, Tu Buscador y Asesor Personal de Propiedades de Confianza

Contar con asesores locales es esencial debido a la variedad arquitectónica, las regulaciones patrimoniales y oportunidades fuera del mercado público. Consultores experimentados ofrecen acceso a propiedades exclusivas y recomendaciones estratégicas apoyadas en su red con arquitectos especializados, logrando transacciones eficientes y bien orientadas.

Evita los errores comunes

Los compradores internacionales a menudo pierden tiempo valioso en listados en línea duplicados, desactualizados o engañosos, especialmente porque casi el 30% de las casas de lujo nunca aparecen en el mercado público. Los agentes del vendedor representan los intereses del vendedor, no los del comprador. Incluso solicitar información sobre una propiedad puede resultar en que un agente del vendedor te registre como su “cliente” sin tu consentimiento.
Con Baerz Property Finders & Advisors, evitas por completo todos estos errores. Trabajamos únicamente en tu nombre, ofreciendo representación independiente, orientación clara y acceso a todas las propiedades disponibles, incluidas oportunidades fuera del mercado que otros nunca llegan a ver.

¿Interesado en un Asesor Personal de Propiedades?

Te mostramos todas las casas disponibles en un solo lugar. No dudes en contactarnos para saber cómo podemos satisfacer tus necesidades y proteger tus intereses exclusivamente.

Características

Sistema de alarma
Transferencia de propiedad
Precio solicitado
€ 1.175.000
Estado
verkocht onder voorbehoud
Aceptación
in overleg
Construcción
Tipo de casa
Villa
Tipo de edificio
halfvrijstaande woning
Periodo de construcción
1992
Calificación energética
B
Tipo de tejado
samengesteld dak
Dormitorios
3
Baños
1
Superficies y Volumen
Superficie habitable
162 m2
Otro espacio interior
43 m2
Volumen en metros cúbicos
760 m3
Tamaño del terreno
655 m2
Instalaciones
Mechanische ventilatie
Alarminstallatie
Tv kabel
Buitenzonwering
Rookkanaal
Aan water
Beschutte ligging
Buiten bebouwde kom
Aan vaarwater
Baerz & Co Property Brochure

Folleto

Vídeos

Planos

KockvanBenthem Makelaars

Bisschopstraat 18
7571 CZ Oldenzaal

bk@kvbm.nl
+31 541 52 20 22

www.kvbm.nl

Solicitud de información / Visita

Bert Kock profile image
Bert Kock
Real Estate Agent

Comprar una propiedad de lujo en Valkenburg

Valkenburg sobresale por su riqueza patrimonial, servicios exclusivos y espíritu de comunidad. Inversores y residentes disfrutan de atención personalizada, una escena cultural activa y ambiente internacional en esta emblemática localidad neerlandesa.