Baerz & Co is een landelijk samenwerkingsverband van zorgvuldig geselecteerde boutique luxury makelaars. Samen vormen wij één netwerk, met één gedeeld aanbod. De woningen die u op onze website ziet, zijn afkomstig van alle aangesloten kantoren binnen Baerz & Co. Daardoor is niet ieder object rechtstreeks door ons kantoor in verkoop, maar door een gespecialiseerde collega binnen ons netwerk. Heeft u een woning gevonden die u aanspreekt en wilt u meer informatie? Dan brengen wij u graag persoonlijk in contact met de betreffende verkoopmakelaar, zodat u direct en zorgvuldig wordt begeleid.

AMSTERDAM
Bert Haanstrakade 398 - 1087 EC
Nederland

Bert Kock profile image
Bert Kock
Real Estate Agent
€1.650.000 k.k.
Woonoppervlakte
276m2
Perceeloppervlakte
177m2
Slaapkamers
5

Omschrijving

Bert Haanstrakade 398, 1087 EC Amsterdam

Aan de geliefde Bert Haanstrakade, direct aan het IJmeer, ligt deze moderne en royale eengezinswoning van ca. 276 m². De woning is stijlvol afgewerkt, energiezuinig en biedt dankzij de grote raampartijen een overvloed aan licht en een adembenemend uitzicht over het water.

Met vier woonlagen, vijf slaapkamers, twee badkamers, een sauna, een bioscoopkamer en diverse multifunctionele ruimtes is dit een ideaal familiehuis waar comfort en design samenkomen. De zonnige tuin op het zuiden, twee privéparkeerplaatsen met laadpaal en 17 zonnepanelen maken het geheel compleet.

Een unieke combinatie van ruimte, licht, luxe en uitzicht op een van de mooiste locaties van IJburg, en toch dichtbij de stad.

Indeling

Begane grond

U komt de woning binnen in een verzorgde entree met een separaat toilet. Aan de voorzijde bevindt zich een ruime werk- of studeerkamer, ideaal voor thuiswerken of als extra slaapkamer. Het brede raam zorgt voor veel daglicht en uitzicht op de rustige straat.

Via de glazen tussendeur bereikt u de ruime leefkeuken, gelegen aan de achterzijde met zicht op de tuin. De hoge plafonds en grote raampartijen tot aan de vloer zorgen voor een overvloed aan licht en een ruimtelijk gevoel. De moderne keuken is uitgerust met een groot kookeiland, composiet werkblad en hoogwaardige inbouwapparatuur, waaronder een vaatwasser, Quooker, inductiekookplaat, magnetron, oven en bordenwarmer.

Dubbele openslaande deuren geven toegang tot de onderhoudsvriendelijke achtertuin van circa 54 m². De tuin is fraai aangelegd met houten vlonders, sierbestrating en groen. Achterin bevindt zich een eigen poort naar het achtergelegen terrein met twee privéparkeerplaatsen voorzien van een elektrische laadpaal.

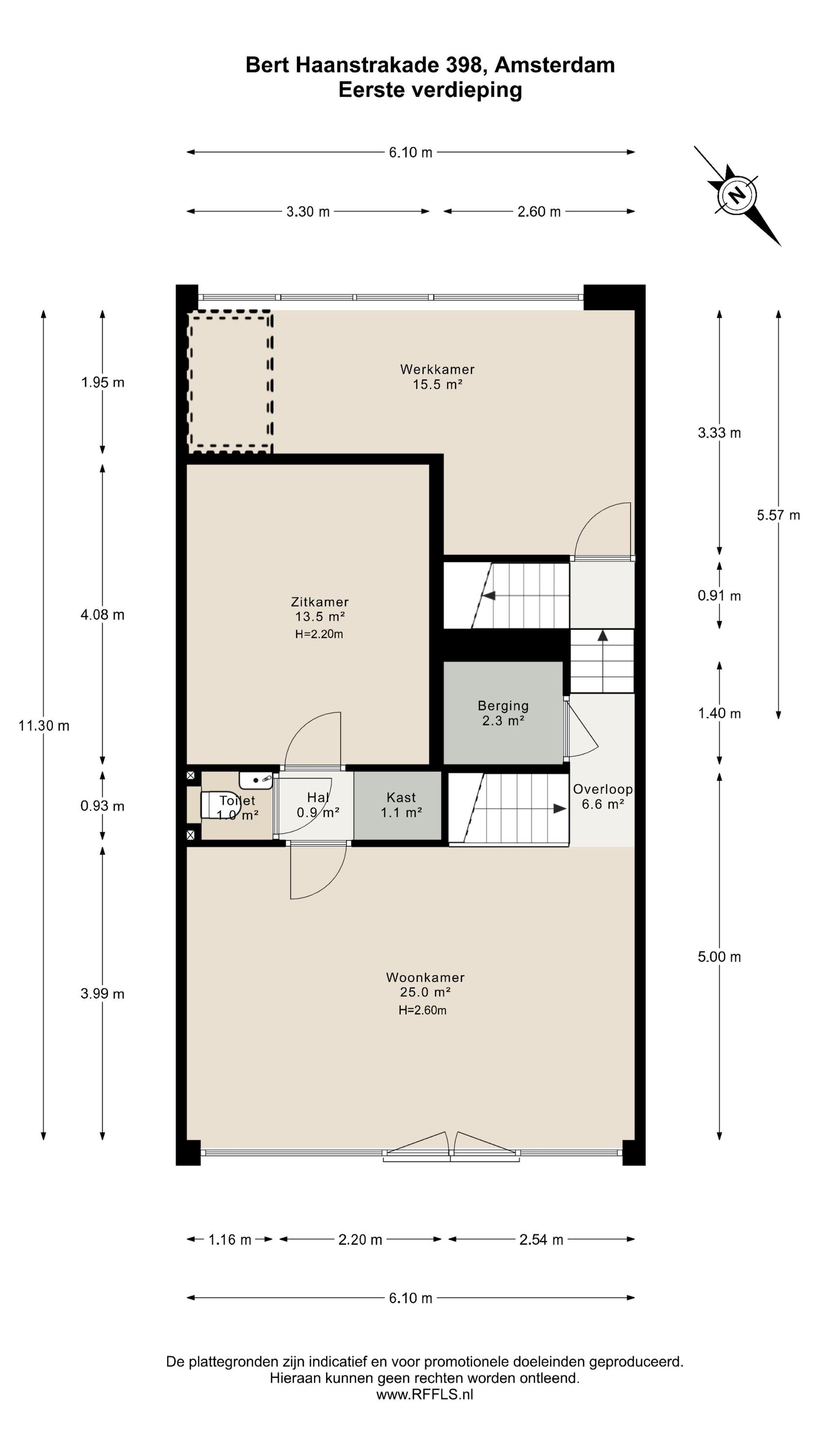
Eerste verdieping

De eerste verdieping is ingericht als comfortabele woonverdieping met een speelse indeling en veel licht. Aan de voorzijde ligt de ruime woonkamer met een plafondhoogte van 2,60 meter en grote raampartijen met vrij uitzicht over het IJmeer. De openslaande deuren en haard creëren een sfeervolle, lichte ruimte met een vloeiende overgang tussen binnen en buiten.

Aangrenzend bevindt zich een sfeervolle tv- of bioscoopkamer, volledig geïsoleerd en voorzien van akoestische wandpanelen — de ideale plek voor een filmavond of om ongestoord muziek te luisteren.

Aan de achterzijde ligt een tweede ruime werkkamer met veel daglicht en uitzicht op de groene binnentuin. Deze ruimte is ook uitstekend geschikt als speelkamer of extra slaapkamer.

Daarnaast beschikt deze verdieping over een separaat toilet, een praktische berging en een vaste kast. De afwerking is modern en verzorgd, met een strakke gietvloer en glad gestucte wanden.

Tweede verdieping

Via de trap vanaf de eerste verdieping bereikt u eerst een tussenverdieping, momenteel ingericht als unieke kinderspeelruimte met doorkijk naar de woonkamer. Deze creatieve ruimte vormt een echte blikvanger en benadrukt het gezinsvriendelijke karakter van de woning.

Op de tweede verdieping bevindt zich een ruime slaapkamer aan de voorzijde met een aangrenzende kamer, momenteel in gebruik als inloopkast.

De royale badkamer ademt luxe en rust, met warme aardetinten en hoogwaardige afwerking. De ruimte beschikt over een vrijstaand ligbad, inloopdouche met regendouche, dubbele wastafel en een sauna — een heerlijke plek voor ontspanning na een drukke dag.

Verder zijn er op deze verdieping een praktische wasruimte met aansluiting voor wasmachine en droger, een aparte berging en een separaat toilet aanwezig.

Derde verdieping

Aan de voorzijde bevindt zich een zeer ruime slaapkamer, momenteel ingericht als stijlvolle master bedroom. Dankzij de grote raampartij over de volledige breedte geniet u hier van een spectaculair uitzicht over het IJmeer. De kamer voelt dankzij de glazen scheidingswand en rustige kleurtinten modern en ruimtelijk aan.

Aan de achterzijde liggen nog twee slaapkamers, perfect geschikt als kinder-, logeer- of werkkamer. Beide ruimtes zijn licht, praktisch ingedeeld en voorzien van grote ramen.

Verder beschikt deze verdieping over een tweede badkamer, uitgevoerd met een inloopdouche, wastafelmeubel en moderne afwerking. Daarnaast zijn er een separaat toilet en een praktische berging met extra opbergruimte.

De overloop met dakraam verbindt de vertrekken en zorgt voor een prettige natuurlijke lichtinval.

Omgeving en bereikbaarheid

De Bert Haanstrakade is gelegen aan het water op Haveneiland West, tussen het Steigereiland en het Grote Rieteiland op IJburg. Deze prachtige plek biedt een vrij en weids uitzicht over het IJmeer en heeft een ontspannen sfeer. Deze omgeving biedt voor ieder wat wils. In de directe omgeving bevinden zich het hippe stadsstrand ‘Blijburg aan zee’, het uitgestrekte Diemerpark en diverse speeltuinen en sportvelden, dit maakt het een ideale omgeving voor zowel gezinnen als liefhebbers van buitenleven en rust.

IJburg biedt bovendien een breed scala aan voorzieningen: uitstekende scholen, kinderopvang, een modern winkelcentrum met winkels voor alledaagse boodschappen en diverse speciaalzaken, en op zaterdag de gezellige ‘Reuring Markt’ op het Joris Ivensplein. Daarnaast is er een ruime keuze aan restaurants, cafés en terrassen aan de haven, langs de IJburglaan en op het Steigereiland – dus ook een ideale omgeving voor wie ervan houdt de levendigheid op te zoeken in deze sociale buurt.

De bereikbaarheid is uitstekend. Via de afslag S114 rijdt u in enkele minuten naar de Ringweg A10, met aansluitingen op de A1, A2 en A9. Ook met het openbaar vervoer is de verbinding met de stad goed geregeld: tramlijn 26 brengt u binnen circa 15 tot 20 minuten rechtstreeks naar Amsterdam Centraal Station.

Kortom: IJburg heeft hiermee een ideale ligging met een combinatie van rust, ruimte, natuur en stedelijke voorzieningen – met het bruisende hart van Amsterdam altijd binnen handbereik.

Bijzonderheden
- Woonoppervlak van ca. 276 m² (gemeten conform NEN 2580 meting);
- Ruime tuin op het zuiden;
- Twee parkeerplaatsen op eigen terrein met elektrische laadpaal;
- Bouwjaar 2015;
- Speels en creatief ingerichte woonlagen;
- Geluiddichte home cinema room;
- De gehele woning is voorzien van vloerverwarming;
- Woning beschikt over 17 zonnepanelen;
- Energiezuinig gebouw inclusief HR++ glas, stadsverwarming en gasvrij;
- De woning beschikt over een liftschacht (er kan een lift worden geplaatst);
- Erfpacht is afgekocht tot 28 februari 2065 (AB 2016) en omgezet naar eeuwigdurende erfpacht met een canon van circa € 3.947,85 per jaar (onderhevig aan jaarlijkse indexatie).
- Oplevering in overleg.

Deze informatie is door ons met de nodige zorgvuldigheid samengesteld. Onzerzijds wordt echter geen enkele aansprakelijkheid aanvaard voor enige onvolledigheid, onjuistheid of anderszins, dan wel de gevolgen daarvan. Alle opgegeven maten en oppervlakten zijn indicatief. Koper heeft zijn eigen onderzoek plicht naar alle zaken die voor hem of haar van belang zijn. Met betrekking tot deze woning is de makelaar adviseur van verkoper. Wij adviseren u een deskundige (NVM-)makelaar in te schakelen die u begeleidt bij het aankoopproces. Indien u specifieke wensen heeft omtrent de woning, adviseren wij u deze tijdig kenbaar te maken aan uw aankopend makelaar en hiernaar zelfstandig onderzoek te (laten) doen. Indien u geen deskundige vertegenwoordiger inschakelt, acht u zich volgens de wet deskundige genoeg om alle zaken die van belang zijn te kunnen overzien. Van toepassing zijn de NVM voorwaarden.

Kenmerken

Zonnepanelen
Overdracht
Vraagprijs
€ 1.650.000 k.k.
Status
beschikbaar
Aanvaarding
in overleg
Bouw
Soort woonhuis
Eengezinswoning
Soort bouw
tussenwoning
Bouwjaar
2015
Energieklasse
A
Soort dak
plat dak
Slaapkamers
5
Badkamers
2
Oppervlakten en inhoud
Woonoppervlakte
276 m2
Overige inpandige ruimte
0 m2
Inhoud
903 m3
Perceeloppervlakte
177 m2
faciliteiten
Mechanische ventilatie
Rookkanaal
Frans balkon
Dakraam
Sauna
Zonnepanelen
Natuurlijke ventilatie
Aan water
Aan rustige weg
In woonwijk
Vrij uitzicht
Baerz & Co Property Brochure

Brochure

Video’s

KockvanBenthem Makelaars

Bisschopstraat 18
7571 CZ Oldenzaal

bk@kvbm.nl
+31 541 52 20 22

www.kvbm.nl

Informatie / bezichtigingsaanvraag

Bert Kock profile image
Bert Kock
Real Estate Agent

Een luxe woning kopen in Amsterdam

Amsterdam biedt een kosmopolitische levensstijl, gekenmerkt door erfgoed, verbondenheid en discrete luxe. Bewoners profiteren van een sterke internationale gemeenschap, hoogwaardige dienstverlening en een bruisende cultuur. De blijvende aantrekkingskracht van de stad schuilt in de combinatie van geschiedenis, verfijning en een vooruitstrevende geest.