Ons kantoor is lid van Baerz & Co Luxury Homes; een internationaal platform dat exclusieve woningmakelaars met elkaar verbindt. Neem contact op met ons secretariaat voor meer informatie over het landelijke aanbod, waarvan u hieronder een selectie kunt bekijken.

Tussenverdieping te koop in AMSTERDAM

AMSTERDAM Nieuwe Spiegelstraat 26 A - 1017 DG Nederland


Steijn Schothorst profile image
Steijn Schothorst
Real Estate Agent
+316 53436695
info@heerenmakelaars.nl

Heeren Makelaars
Stadionweg 75
1077 SE Amsterdam
NETHERLANDS
+31 0204702255
www.heerenmakelaars.nl
info@heerenmakelaars.nl

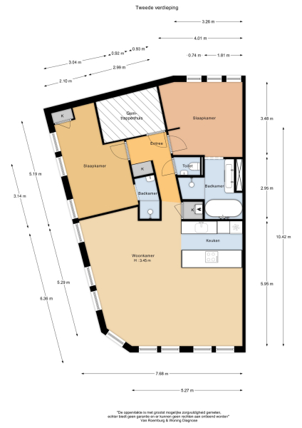
Woonoppervlakte
87m2
Perceeloppervlakte
N/A
Slaapkamers
2

Omschrijving

Nieuwe Spiegelstraat 26A, 1017 DG, Amsterdam

In een iconisch pand met een rijke geschiedenis bieden wij dit instapklare appartement te koop aan! De woning bevindt zich op de tweede verdieping, heeft een oppervlakte van ca. 87 m² en biedt een adembenemend panoramisch uitzicht. Het appartement is bijzonder energiezuinig, het betreft een A+ label. Bovendien is de woning gelegen op eigen grond, dus betreft géén erfpacht!

Gelegen op de hoek van de Keizersgracht ende Nieuwe Spiegelstraat, vangt dit appartement de essentie van verfijnd wonen in Amsterdam. Grote ramen laten overvloedig daglicht binnenstromen, waardoor het zorgvuldig ontworpen interieur prachtig tot zijn recht komt en de historische omgeving extra wordt benadrukt. Met het Rijksmuseum op slechts 3 minuten loopafstand, bevinden bewoners zich op een toplocatie om te genieten van het beste wat de stad op cultureel en architectonisch gebied te bieden heeft terwijl u volop uitzicht geniet over een van de mooiste stukjes gracht van Amsterdam.

Bij binnenkomst van het appartement op de tweede verdieping stapt u direct de ruime en lichte woonkamer binnen. Deze valt op door de indrukwekkende plafondhoogte en de grote raampartijen die zich uitstrekken over de volledige breedte van de voorgevel – zowel aan de zijde van de Nieuwe Spiegelstraat als aan de Keizersgracht. De moderne open keuken is voorzien van hoogwaardige inbouwapparatuur, waaronder een inductiekookplaat met geïntegreerd afzuigsysteem, een koel-vriescombinatie, combi-oven, vaatwasser en een Quooker. Het stijlvolle kookeiland met een blad van travertin vormt het centrale element van de ruimte.
De twee ruim bemeten slaapkamers beschikken beiden over een eigen airco-installatie. De master bedroom is voorzien van een ingebouwde kastenwand en heeft een en-suite badkamer met een ruim ligbad, een wastafelmeubel en een inloopdouche, afgewerkt met een antiek messing douchekop en zellige wandtegels. Ook de tweede slaapkamer beschikt over een badkamer en-suite, voorzien van een inloopdouche en een wastafelmeubel.
Centraal in de woning bevinden zich nog een garderobekast en een separaat toilet met fonteintje, fraai afgewerkt met Marokkaanse tegeltjes.

Bijzonderheden:
- Appartementsrecht van ca. 87 m² (gemeten conform NEN2580 meetinstructie)
- Geheel gerenoveerd met hoogwaardige materialen
- Twee goed bemeten slaapkamers
- Projectnotaris Hartman LMH
- Slaapkamers voorzien van een airco-installatie
- Twee moderne badkamers
- Gelegen op een toplocatie
- Energielabel A+
- Gelegen op eigen grond, dus géén erfpacht
- Koper ontvangt een voucher á € 10.000,- bedoeld om de (binnendelen van) inbouwkasten naar eigen smaak te bepalen
- Projectwebsite: www.spiegelenkeizer.nl
- Het project hebben wij collegiaal in verkoop samen met Max de Makelaer Amsterdam

Kenmerken

Overdracht
Vraagprijs
€ 1.200.000 k.k.
Status
onder bod
Aanvaarding
in overleg
Bouw
Soort woonhuis
Tussenverdieping
Soort bouw
appartement
Bouwjaar
1692
Energieklasse
A_P
Soort dak
plat dak
Slaapkamers
2
Badkamers
0
Oppervlakten en inhoud
Woonoppervlakte
87 m2
Overige inpandige ruimte
0 m2
Inhoud
301 m3
faciliteiten
Mechanische ventilatie
Airconditioning
Aan water
In centrum
Baerz & Co Property Brochure

Brochure

Informatie / bezichtigingsaanvraag

Video's

Foto's

Plattegronden