Ons kantoor is lid van Baerz & Co Luxury Homes; een internationaal platform dat exclusieve woningmakelaars met elkaar verbindt. Neem contact op met ons secretariaat voor meer informatie over het landelijke aanbod, waarvan u hieronder een selectie kunt bekijken.

Single Family House te koop in Rhenen

Rhenen Herenstraat 84 - 3911 JG Nederland


Wistik Zonnenberg profile image
Wistik Zonnenberg
Real Estate Agent
+31 318 559600
info@zonnenbergmakelaardij.nl

Zonnenberg Makelaardij
Kerkewijk 108
3904 JG Veenendaal
NETHERLANDS
+31 318 559600
www.zonnenbergmakelaardij.nl
info@zonnenbergmakelaardij.nl

Woonoppervlakte
209m2
Perceeloppervlakte
1295m2
Slaapkamers
4

Omschrijving

Bent u op zoek naar een woning met karakter, ruimte en potentie? Dan mag u deze unieke kans aan de Herenstraat 84 in Rhenen niet missen. Deze sfeervolle en authentieke woning biedt u de kans om uw droomwoning te realiseren op een toplocatie. De woning is gelegen aan de rand van het gezellige centrum van Rhenen, op loopafstand van de bossen van de Utrechtse heuvelrug en het natuurgebied rondom de Rijn.

De woning heeft een gebruikersoppervlakte van maar liefst 208m², en biedt volop mogelijkheden met een open woonkamer, afgesloten woonkeuken, praktische bijkeuken, ruime kantoorruimte, 4 slaapkamers en een handige kelderruimte. Indien nodig kunnen er gemakkelijk 1 a 2 extra slaapkamers gecreëerd worden. Het grote perceel van maar liefst 1295 m² geeft de woning al de buitenruimte die u zich kunt wensen. Naast een heerlijke tuin, kunt u hier indien gewenst een extra bijgebouw, veranda of tuinkamer plaatsen.

Kortom, zoekt u een karakteristieke en stijlvolle woning met veel woon-/leefruimte en groot perceel? Dan is dit uw kans om op een toplocatie uw droomwoning te realiseren! Hier ervaart u sfeer en ruimte midden in een charmante omgeving.

Gelegen in het rustige en groene Rhenen, bevindt deze woning zich op een aantrekkelijke locatie met alles binnen handbereik. Het sfeervolle centrum van Rhenen, waar u een divers aanbod aan winkels, horeca en supermarkten vindt, ligt op slechts enkele minuten afstand. Voorzieningen zoals scholen, sportclubs en openbaar vervoer zijn nabij en zorgen voor uitstekend wooncomfort. Rhenen is bovendien centraal gelegen en goed bereikbaar met de auto en het openbaar vervoer, via NS-station Rhenen, waardoor steden als Utrecht, Veenendaal en Wageningen gemakkelijk te bereiken zijn. Deze buurt biedt de ideale balans tussen rust en gemak met alle benodigdheden op korte afstand.

Entree:
De karaktervolle entree van deze woning trekt direct de aandacht. Via een pad, bereikt u de voordeur aan de straatkant. Eenmaal binnen, leidt de ruime hal u door het hart van de woning en biedt toegang tot alle kamers op de begane grond, waaronder een kantoorruimte, bijkeuken, de woon-/leefkeuken en de woonkamer.

Woonkamer:
In de lichte, open woonkamer valt het natuurlijke daglicht direct op, dankzij de royale raampartijen aan zowel de voor- als achterkant. Deze ruimte nodigt uit om een comfortabele zithoek en een royale eethoek te creëren. Karakteristieke elementen zoals een charmante schouw, sierlijke ornamenten en een warme houten vloer geven de woonkamer een sfeervolle uitstraling. Met enige modernisering kan deze ruimte weer een eigentijdse look en feel krijgen, perfect passend bij uw eigen woonwensen.

Keuken:
Aansluitend aan de hal bevindt zich de afgesloten keuken, voorzien van een praktisch L-vormig aanrechtblad. Hier vindt u een ingebouwde oven en gasfornuis, maar de ruimte leent zich perfect voor een volledige renovatie. Met de beschikbare ruimte kunt u hier een moderne keuken realiseren, geheel naar eigen smaak. Vanuit de keuken heeft u directe toegang tot de kantoorruimte op de begane grond en de riante achtertuin. Eventueel kan de kantoorruimte ook benut worden als aparte eetkamer.

Kelder:
Onder de woning bevindt zich een kelder die vanuit de hal toegankelijk is. Een ideale plek voor extra opslagruimte en het koel bewaren van etenswaren of andere benodigdheden. Deze functionele ruimte biedt extra comfort en gemak in het dagelijks leven. Een deel van de kelderruimte is vanuit buiten te bereiken.

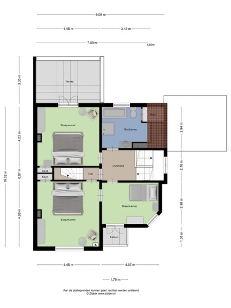
1e verdieping:
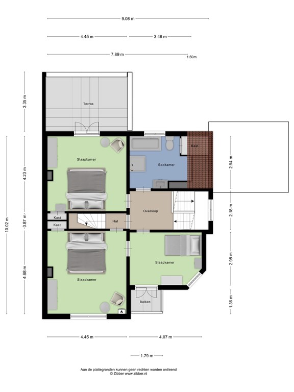
De hal op de begane grond leidt naar de trap, die uitkomt op de 1e verdieping. Hier bevinden zich drie ruime slaapkamers en de badkamer, allen met voldoende daglicht en mogelijkheden voor modernisering en herinrichting.

Slaapkamers:
De slaapkamers op deze verdieping zijn royaal genoeg om er een bed en een bureau in te plaatsen, en worden van veel lichtinval voorzien. Eén van de slaapkamers heeft openslaande deuren naar het dakterras; de ander beschikt over een balkon met uitzicht op de straatkant. Deze kamers zijn multi-inzetbaar, ideaal voor bijvoorbeeld logees, een werkplek of extra opslagruimte. Na een kleine opknapbeurt zijn ze klaar voor gebruik.

Badkamer:
De badkamer biedt veel ruimte en is volledig betegeld. U vindt er een douchecabine, ligbad, wastafel met spiegel, handdoekradiator en een toilet. Hoewel de badkamer enige modernisering kan gebruiken, is het een ruimte waar u heerlijk tot rust komt na een lange dag.

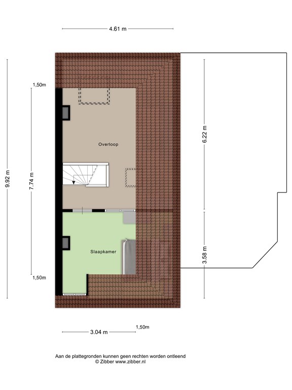
2e verdieping:
Een vaste trap brengt u naar de 2e verdieping, waar een ruime overloop en een sfeervolle slaapkamer zijn gesitueerd. Ondanks de schuine daklijn is er meer dan voldoende stahoogte en geven de zichtbare houten draagbalken de vierde slaapkamer een warm karakter. Eventueel is er op deze verdieping een extra vijfde slaapkamer te creëren.

Buitenruimte:
Aan de achterzijde van de woning ligt een riante, groene achtertuin op het zuiden, waar u in alle rust kunt genieten van de zon. Het aangelegde terras biedt ruimte voor een royale loungeset of buitentafel, waardoor het de ideale plek is voor gezellige avonden en ontspanning in de buitenlucht. Dankzij de begroeiing rondom geniet u hier van volledige privacy en creëert u een eigen groene oase om van te genieten in elk seizoen.

Algemene gegevens
- Type woning: 2 onder 1 kap
- Bouwjaar: 1902
- Aantal kamers: 6
- Aantal slaapkamers: 4
- Aantal badkamers: 1
- Parkeerruimte: Openbaar
- Aanwezig: dakkapel/berging
- Ligging tuin: zuid

Technische gegevens
- Warmwatervoorziening: HRC30 CV-ketel Nefit
- Verwarmvoorziening: HRC30 CV-ketel Nefit
- Openhaard
- Voorzieningen: buitenzonwering / 2x kelder
- Dubbel glas: deels
- Glasvezel kabel, TV kabel
- Kozijnen: hout

WILT U EVEN BINNEN KIJKEN?

Voor meer informatie omtrent deze woning, kunt u contact opnemen met ons kantoor in Rhenen.

U bent van harte welkom! De beste indruk van deze woning krijgt u natuurlijk tijdens een bezichtiging. Wij proberen onze bezichtigingen altijd in samenspraak met verkoper en koper te plannen en nemen ruim de tijd, zodat u op uw gemak de woning kan bekijken en ervaren.
N.B. Aan de samenstelling van deze gegevens is maximale zorg besteed. Aan onvolkomenheden in de vermelde gegevens en tekeningen kunnen geen rechten en aanspraken worden ontleend.

Kenmerken

Overdracht
Vraagprijs
€ 899.950 k.k.
Status
Available
Aanvaarding
In Concert
Referentie
08084
Bouw
Soort woonhuis
Single Family House
Soort bouw
Semi Detached House One Roof
Bouwjaar
1902
Energieklasse
F
Soort dak
composite
Slaapkamers
4
Badkamers
1
Oppervlakten en inhoud
Woonoppervlakte
209 m2
Overige inpandige ruimte
24 m2
Gebouwgebonden buitenruimte
37 m2
Externe bergruimte
6 m2
Inhoud
825 m3
Perceeloppervlakte
1295 m2
faciliteiten
Balcony
Cable Tv
Fireplace
Fluetube
Not Furnished
Garden
Internetconnection
Phoneline
Skylight
Storageroom
Not Upholstered
Baerz & Co Property Brochure

Brochure

Informatie / bezichtigingsaanvraag

Video's

Foto's

Plattegronden