Ons kantoor is lid van Baerz & Co Luxury Homes; een internationaal platform dat exclusieve woningmakelaars met elkaar verbindt. Neem contact op met ons secretariaat voor meer informatie over het landelijke aanbod, waarvan u hieronder een selectie kunt bekijken.

AMSTERDAM
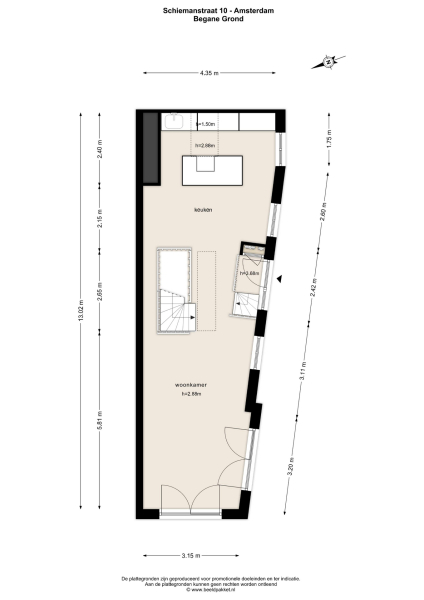
Schiemanstraat 10 - 1013 MJ
Нидерланды

Stefano B. Djoemena profile image
Stefano B. Djoemena
Beëdigd register makelaar o.z.
€985,000 k.k.
Жилая площадь
100m2
Размер участка
80m2
Спальни
2

Описание

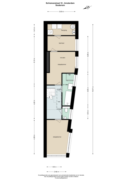
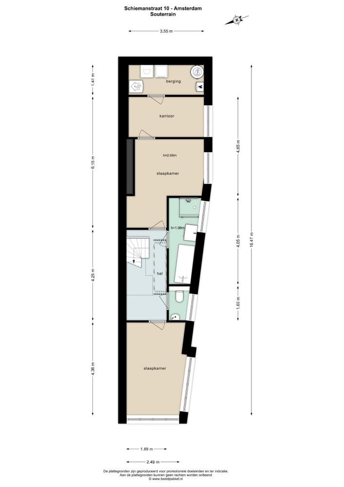
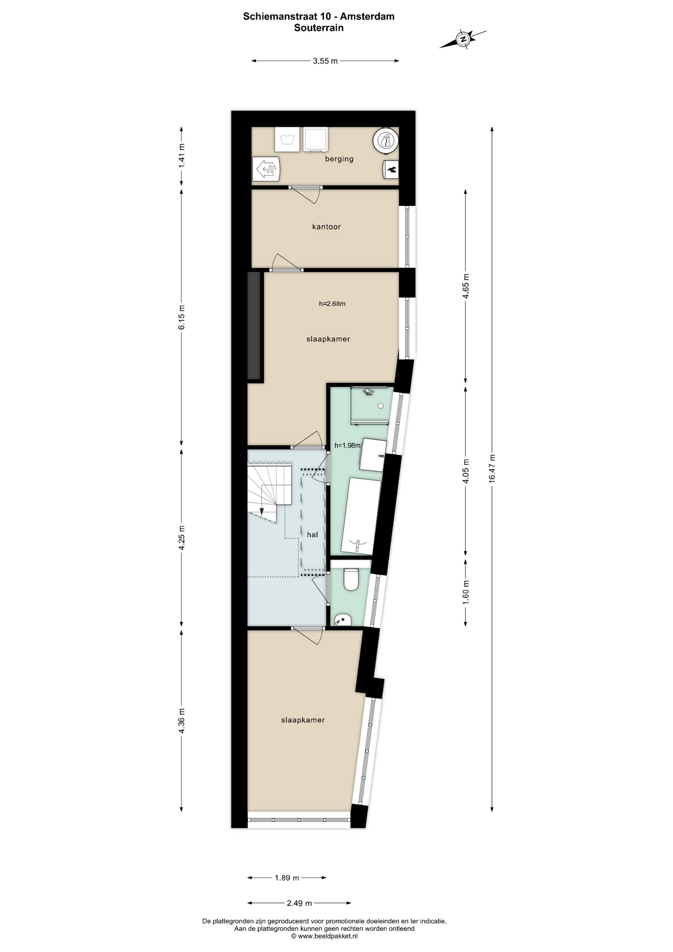
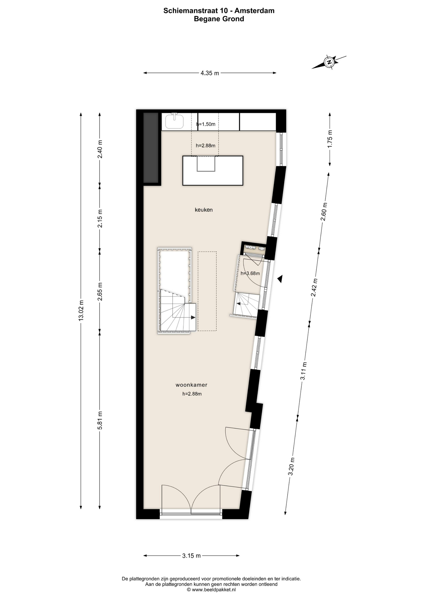
Таунхаус-апартаменты в Амстердаме представляют собой уникальную возможность жить в современном пространстве, воплощающем сдержанную архитектуру и городскую динамику. Это новое здание в индустриальном стиле на Schiemanstraat 10 предлагает квартиру на первом этаже площадью около 100 м², сочетающую выразительный фасад с умиротворяющим видом на канал и приватным входом. Дом выделяется длинной кладкой из классического кирпича, симметричными окнами и изящными алюминиевыми рамами в цвете RAL 6006. Класс энергоэффективности A+++, тройные стеклопакеты, солнечные панели и современная тепловая насосная система обеспечивают экологическую устойчивость на годы вперёд.

Главная жилая зона приподнята и наполнена естественным светом благодаря большим окнам с видом на канал, а высота потолков достигает почти 2,90 метра. Французские балконные двери и функциональная откидная скамья формируют спокойную связь с каналом Westerkanaal. На нижнем уровне — полноценный цокольный этаж с двумя спальнями, рабочей зоной, подсобным помещением и просторной ванной, выполненными на гармоничной технической основе с механической вентиляцией. Интерьеры передаются в состоянии shell, что позволяет воплотить собственное видение дома; прилагается консультация от Co van der Horst.

За пределами входа располагается исторический центр Амстердама вдоль тихих набережных. Haarlemmerplein, оживлённая Haarlemmerstraat и парк Westerpark доступны пешком и открывают доступ к культуре, гастрономии и зелёным зонам. Жилье также обеспечивает удобную связь с Центральным вокзалом и кольцевой дорогой A10. Для тех, кто ищет настраиваемый дом с ярким местным колоритом, этот роскошный таунхаус в Амстердаме станет и заявлением, и убежищем.

Исследуйте Amsterdam вместе с Baerz — вашим надежным советником и личным поисковиком недвижимости

Работа на рынке элитной недвижимости в Амстердаме невозможна без глубоких знаний локальных особенностей, деликатности и мастерства ведения переговоров. Лучшие советники обеспечивают доступ к приватным предложениям, поясняют нюансы права собственности, находят скрытую ценность там, где объекты редко выходят на широкий рынок. Команды экспертов ведут тщательную проверку активов и профессиональное представление клиента, усиливая его позиции на переговорах, обеспечивая прозрачность сделки и полную конфиденциальность.

Избегайте распространённых ошибок

Международные покупатели часто тратят ценное время на изучение дублирующихся, устаревших или вводящих в заблуждение онлайн-объявлений, особенно учитывая, что почти 30% объектов элитной недвижимости вообще не появляются на открытом рынке.
Агенты продавца представляют интересы продавца, а не ваши, и даже простой запрос о недвижимости может привести к тому, что агентство зарегистрирует вас как своего “клиента” без вашего согласия.
С Baerz Property Finders & Advisors вы полностью избегаете этих подводных камней.
Мы действуем исключительно в ваших интересах, предоставляя независимое представительство, прозрачные рекомендации и доступ ко всем доступным объектам, включая частные и вне-рыночные предложения, которых другие никогда не увидят.

Хотите узнать, как получить собственного персонального консультанта по недвижимости? Свяжитесь с нами, чтобы узнать, как мы можем представлять ваши интересы и открыть вам весь рынок.

Особенности

Солнечные панели
Передача права собственности
Запрашиваемая цена
€ 985.000 k.k.
Статус
beschikbaar
Принятие
in overleg
Строительство
Тип дома
Dubbel benedenhuis
Тип здания
appartement
Период строительства
2025
Энергетический рейтинг
A+++
Тип крыши
samengesteld dak
Спальни
2
Ванные комнаты
1
Площадь и объем
Жилая площадь
100 m2
Другое внутреннее пространство
0 m2
Объем в кубических метрах
420 m3
Размер участка
80 m2
Удобства
Mechanische ventilatie
Frans balkon
Zonnepanelen
Aan water
Aan rustige weg
In centrum
Vrij uitzicht
Aan vaarwater
 

Видео

Lunshof Makelaardij Amsterdam

Keizersgracht 555
1017 DR Amsterdam

info@lunshof.nl
+31 575 55 05

www.lunshof.nl

Информация / Запрос на просмотр

Stefano B. Djoemena profile image
Stefano B. Djoemena
Beëdigd register makelaar o.z.