Ons kantoor is lid van Baerz & Co Luxury Homes; een internationaal platform dat exclusieve woningmakelaars met elkaar verbindt. Neem contact op met ons secretariaat voor meer informatie over het landelijke aanbod, waarvan u hieronder een selectie kunt bekijken.

LAGE VUURSCHE
Karnemelksweg 2 - 3749 AH
Нидерланды

Marquiette Schaap profile image
Marquiette Schaap
Real estate agent
€2,750,000 k.k.
Жилая площадь
350m2
Размер участка
2095m2
Спальни
4

Описание

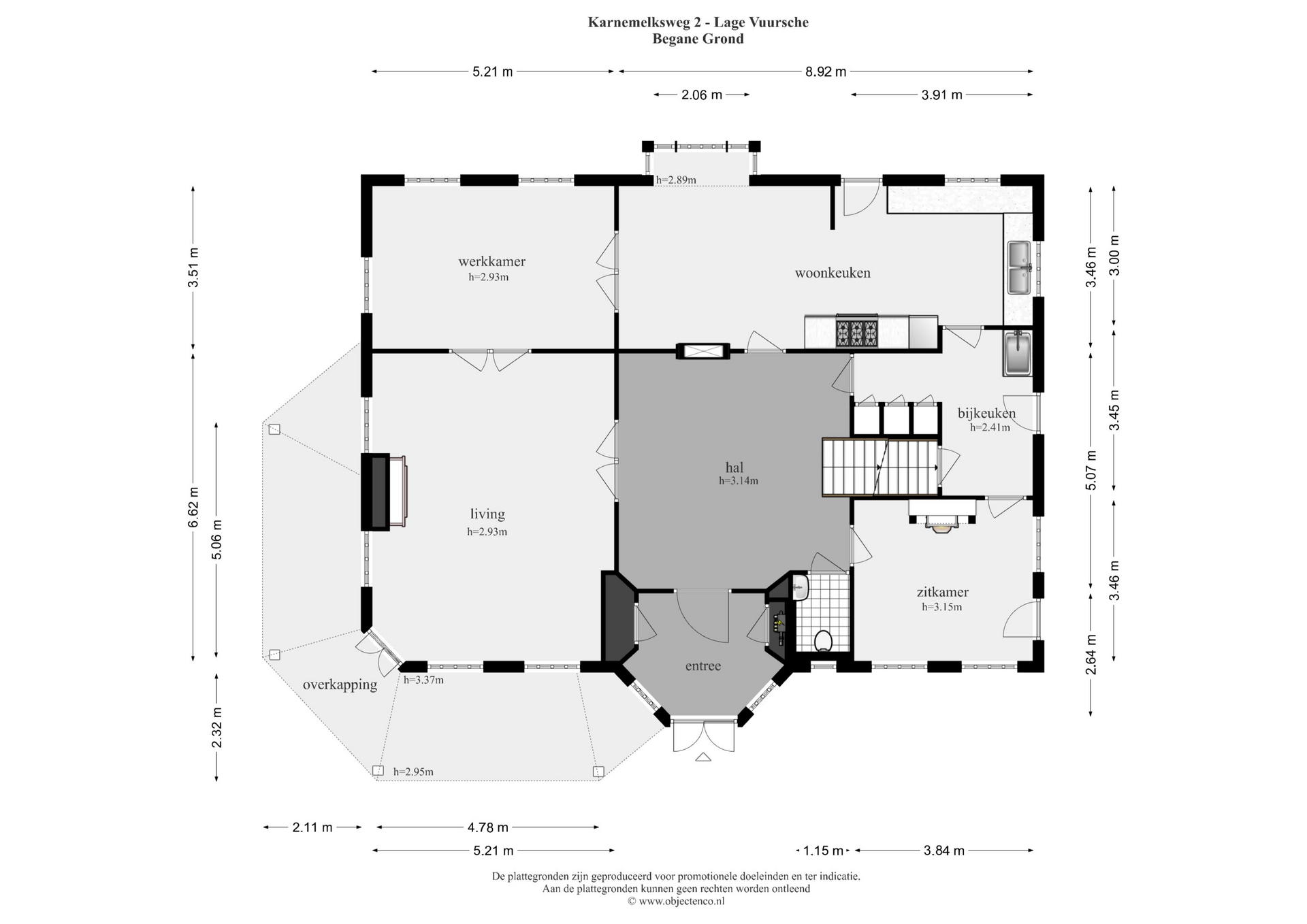
Вилла Lage Vuursche — это адрес, где история и комфорт гармонично сочетаются в редком и умиротворённом лесном окружении. Вилла расположена на частном участке с садом площадью 2 095 м² в Lage Vuursche и предлагает приблизительно 350 м² жилой площади и дополнительно 150 м² подвала, создавая особую атмосферу простора и спокойствия, присущую самой недвижимости и этому историческому посёлку. Вход через частные ворота ведёт к фруктовым деревьям и травяному саду, которые обрамляют дом, где сдержанный шарм чувствуется в каждой архитектурной детали.

Разработанная архитектором Van Asbeck в 2012 году, вилла отличается уникальным вниманием к наследию. В интерьере использованы восстановленный паркет, вековые голландские плитки, антикварные двери и черепица с исторических казарм Утрехта, органично сочетающиеся с современным качеством исполнения. Центральное место на кухне занимает буфет из амстердамского дома на канале, придавая пространству индивидуальность и глубокий смысл. Высокие потолки на первом этаже (около трёх метров) обеспечивают исключительный свет и ощущение щедрого пространства. Статный вход с камином и изысканной лестницей окружён жилыми помещениями: кабинетом, ателье и уютной гостиной с камином.

Главная спальня занимает весь первый этаж; к ней примыкают гардеробная и роскошная ванная комната, а также две дополнительные спальни, каждая со своей ванной, и четвёртый мансардный апартамент наверху. В просторном подвале оборудованы зоны для спортзала, винной комнаты или игровой. Энергетический класс А, частичный подогрев пола, механическая вентиляция, сигнализация и современная техника обеспечивают комфорт и приватность. Гараж и автоматические ворота подчёркивают уединённость, а близость к Баарну, Хилверсуму и основным транспортным артериям обеспечивает стратегический доступ. Вилла Lage Vuursche — это подлинный дом с историей, созданный для ценителей происхождения материалов, пространства и глубокой гармонии.

Исследуйте Lage Vuursche вместе с Baerz — вашим надежным советником и личным поисковиком недвижимости

Уникальные особенности рынка Лаге Фюрше, ограниченное предложение, охраняемый статус и высокая конфиденциальность предполагают работу с проверенными советниками. Опытные консультанты открывают доступ к объектам вне публичных списков, ведут переговоры и обеспечивают соблюдение правовых норм. Благодаря локальным знаниям и глобальному опыту они помогают совместить ваши приоритеты в сфере активов и жизни, делая помощь действительно ценной.

Избегайте распространённых ошибок

Международные покупатели часто тратят ценное время на изучение дублирующихся, устаревших или вводящих в заблуждение онлайн-объявлений, особенно учитывая, что почти 30% объектов элитной недвижимости вообще не появляются на открытом рынке.
Агенты продавца представляют интересы продавца, а не ваши, и даже простой запрос о недвижимости может привести к тому, что агентство зарегистрирует вас как своего “клиента” без вашего согласия.
С Baerz Property Finders & Advisors вы полностью избегаете этих подводных камней.
Мы действуем исключительно в ваших интересах, предоставляя независимое представительство, прозрачные рекомендации и доступ ко всем доступным объектам, включая частные и вне-рыночные предложения, которых другие никогда не увидят.

Хотите узнать, как получить собственного персонального консультанта по недвижимости? Свяжитесь с нами, чтобы узнать, как мы можем представлять ваши интересы и открыть вам весь рынок.

Особенности

Alarm system
Передача права собственности
Запрашиваемая цена
€ 2.750.000 k.k.
Статус
beschikbaar
Принятие
in overleg
Строительство
Тип дома
Villa
Тип здания
vrijstaande woning
Период строительства
2012
Энергетический рейтинг
A++
Тип крыши
samengesteld dak
Спальни
4
Ванные комнаты
3
Площадь и объем
Жилая площадь
350 m2
Другое внутреннее пространство
150 m2
Внешнее пространство, прикрепленное к зданию
29 m2
Объем в кубических метрах
1740 m3
Размер участка
2095 m2
Удобства
Mechanische ventilatie
Alarminstallatie
Tv kabel
Rookkanaal
Aan rustige weg
Vrij uitzicht
Beschutte ligging
In bosrijke omgeving
Baerz & Co Property Brochure

Брошюра

Видео

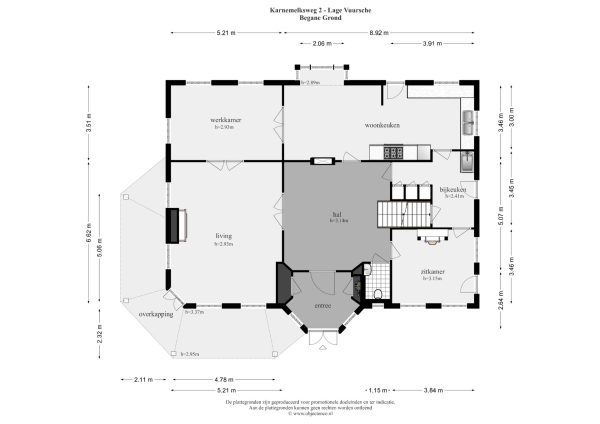
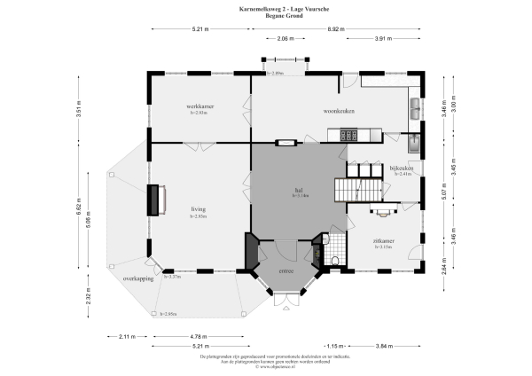
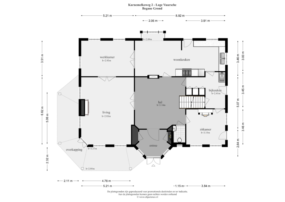
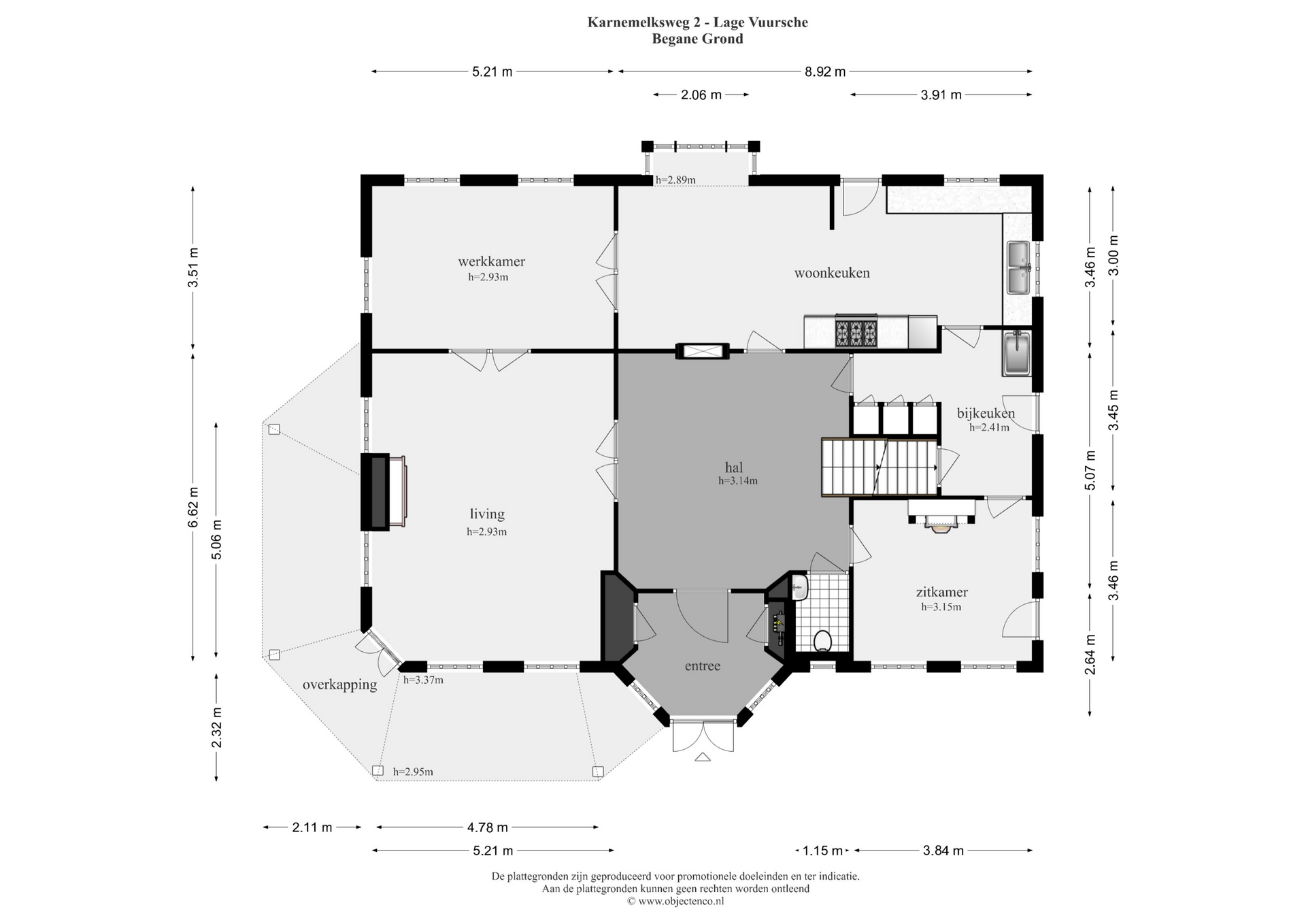
Планы этажей

Art of Living by Marquiette & Partners

Meentweg 4
1261 XT Blaricum

hello@artoflivingbymar.com
+31 35 763 54 24

www.artoflivingbymarquiette.com

Информация / Запрос на просмотр

Marquiette Schaap profile image
Marquiette Schaap
Real estate agent