Ons kantoor is lid van Baerz & Co Luxury Homes; een internationaal platform dat exclusieve woningmakelaars met elkaar verbindt. Neem contact op met ons secretariaat voor meer informatie over het landelijke aanbod, waarvan u hieronder een selectie kunt bekijken.

UITHOORN
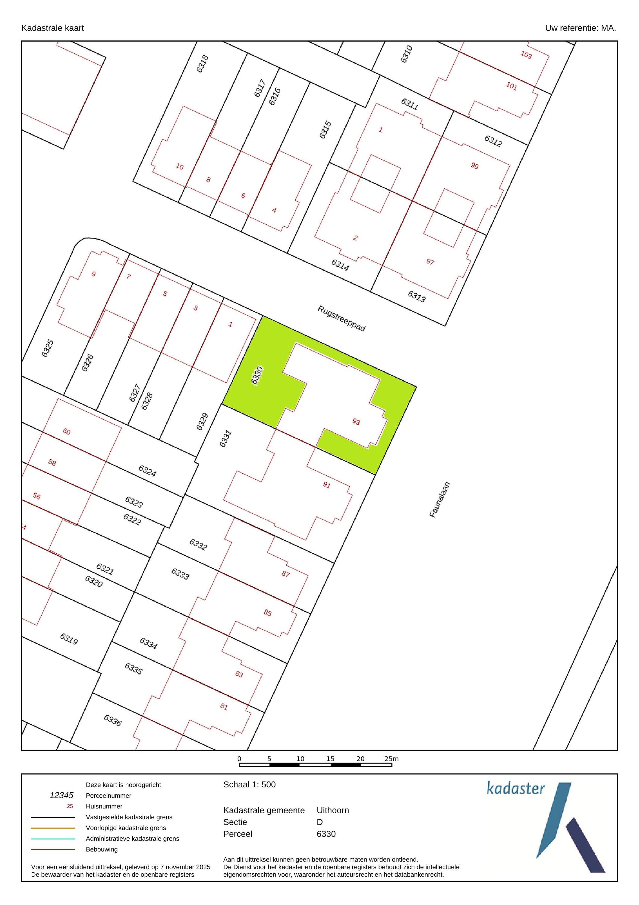
Faunalaan 93 - 1422 ZH
Нидерланды

John Korver profile image
John Korver
Real estate agent
€1,343,000 k.k.
Жилая площадь
290m2
Размер участка
445m2
Спальни
6

Описание

Вилла Uithoorn гармонично сочетает простор и утонченность жизни в престижном жилом районе Legmeer-West. Уже с первых минут вас встречает 290 м² света, приватности и возможных сценариев использования. Уютная атмосфера формируется благодаря широкой подъездной дорожке на несколько автомобилей и тихой улице, подчеркивающей спокойствие этого адреса.

Холл встречает вас продуманной эргономикой и скрытыми системами хранения. Основная гостиная наполнена естественным светом и плавно соединяет интерьер с садом площадью 445 м² через французские двери. Несколько террас, пруд и уютные уголки создают идеальные условия как для отдыха, так и для приёма гостей. Открытая кухня отделана с вниманием к деталям, оборудована большой островной рабочей зоной и техникой премиум-класса, организованными для максимальной функциональности и уюта. Отдельная многофункциональная комната с отдельным входом гибко подходит для кабинета, студии или фитнеса — идеально для тех, кто ценит самостоятельность и творческое пространство.

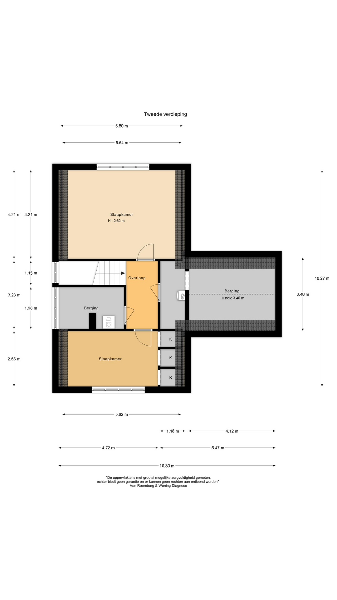
На втором этаже три спальни группируются вокруг спокойной площадки, а также имеется элегантная ванная комната и дополнительный гостевой санузел, что подчеркивает приверженность комфорту и приватности. Третий этаж расширяет функционал дома двумя дополнительными спальнями и обширными зонами хранения, отвечая интересам растущих семей и коллекционеров.

По всей вилле используются материалы премиального уровня, такие как французский дуб с системой подогрева пола, создающие атмосферу сдержанной роскоши. Гараж, оснащённый электрической роллетой, отоплением и возможностью обустройства рабочей зоны, напрямую соединён с домом. Класс энергоэффективности A, что достигается благодаря 18 солнечным панелям и гибридному тепловому насосу, поддерживает современный и экономичный стиль жизни.

Близость к скоростной трамвайной линии до Амстердама и разнообразие школ, парков и спортивных клубов объединяет городские возможности с размеренным ритмом жизни Uithoorn. Эта вилла предлагает не только масштаб и мастерство исполнения, но и адрес, где гармонично сочетаются спокойствие, мобильность и ежедневный комфорт.

Исследуйте Uithoorn вместе с Baerz — вашим надежным советником и личным поисковиком недвижимости

Особенности местного рынка — сложные переговоры, объекты на закрытом рынке, меняющееся законодательство — делают работу с профессиональными советниками особенно ценной. Эти эксперты оказывают практическую поддержку от поиска и проверки жилья до сопровождения сделки. Их знания открывают доступ к скрытым возможностям и обеспечивают клиенту преимущество на всех этапах.

Избегайте распространённых ошибок

Международные покупатели часто тратят ценное время на изучение дублирующихся, устаревших или вводящих в заблуждение онлайн-объявлений, особенно учитывая, что почти 30% объектов элитной недвижимости вообще не появляются на открытом рынке.
Агенты продавца представляют интересы продавца, а не ваши, и даже простой запрос о недвижимости может привести к тому, что агентство зарегистрирует вас как своего “клиента” без вашего согласия.
С Baerz Property Finders & Advisors вы полностью избегаете этих подводных камней.
Мы действуем исключительно в ваших интересах, предоставляя независимое представительство, прозрачные рекомендации и доступ ко всем доступным объектам, включая частные и вне-рыночные предложения, которых другие никогда не увидят.

Хотите узнать, как получить собственного персонального консультанта по недвижимости? Свяжитесь с нами, чтобы узнать, как мы можем представлять ваши интересы и открыть вам весь рынок.

Особенности

Солнечные панели
Передача права собственности
Запрашиваемая цена
€ 1.343.000 k.k.
Статус
verkocht onder voorbehoud
Принятие
in overleg
Строительство
Тип дома
Villa
Тип здания
geschakelde woning
Период строительства
2009
Энергетический рейтинг
A
Тип крыши
samengesteld dak
Спальни
6
Ванные комнаты
1
Площадь и объем
Жилая площадь
290 m2
Другое внутреннее пространство
22 m2
Объем в кубических метрах
1116 m3
Размер участка
445 m2
Удобства
Mechanische ventilatie
Tv kabel
Rookkanaal
Dakraam
Zonnepanelen
Balansventilatie
Natuurlijke ventilatie
Aan rustige weg
In woonwijk
Baerz & Co Property Brochure

Брошюра

Видео

Планы этажей

Korver makelaars

Stationsweg 12
3641RG Mijdrecht

welkom@korvermakelaars.nl
+31 297 25 04 21

www.korvermakelaars.nl

Информация / Запрос на просмотр

John Korver profile image
John Korver
Real estate agent