Welkom bij KockvanBenthem Makelaars Internationaal. Ook ver buiten Nederland zijn wij zeer actief. Via ons internationale netwerk binnen Baerz & Co Luxury Homes begeleiden onze Nederlandse (!) partners u vakkundig bij de aankoop van exclusieve tweede huizen. U vindt ons in 20 landen rond de Middellandse zee, de Alpen, Mexico en Dubai. Neem voor meer informatie contact op met ons secretariaat.

WAHLBACH
法国

Chantal Cunningham profile image
Chantal Cunningham
Chief Property Advisory
€848,000
居住面积
280m2
地块大小
1900m2
卧室
5

描述

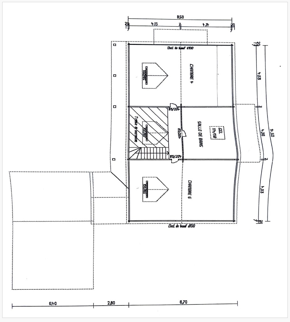
法国瓦尔巴赫别墅(Villa Wahlbach France)坐落于阿尔萨斯桑德戈地区,是一处精致的田园静谧居所。该物业总面积为280平方米,三层布局匠心独运,将法式乡村节奏静静呈现,距巴塞尔仅15分钟车程,并临近德国。别墅采用于2011年建成的长岛风格木结构建筑,兼具低调优雅与历久弥新的气质。

客厅与餐厅沐浴自然光照,木柴壁炉为四季生活带来恒久温馨与安宁节奏。五间卧室与三间浴室分布合理,兼顾私密性与社交性,两间专属更衣室及夹层空间提升整体空间体验。开放式厨房成为家庭核心,无论待客还是每日相聚皆游刃有余。高速光纤网络和卫星电视保障现代生活所需的连接。功能与舒适并重,配备专用杂物间、洗衣房、酒窖以及52平方米的车库,可停放多达四辆车。

别墅占地近1,900平方米,私密土地被一条潺潺小溪环绕,景观赋予空间感、宁静及与自然的真实联系。栖于群山环抱、富有法德文化底蕴的村落之间,周边便捷通往孚日山、黑森林及汝拉的徒步、山地骑行和文化之旅。对于追求静谧田园而又需国际化配套的生活,这座别墅完美诠释了真实与低调的格调。

与Baerz一起探索Wahlbach,您值得信赖的个人房产搜索和顾问

瓦尔巴赫的隐秘房产市场需依赖专业顾问导航。本地专家拥有独家房源资源和卓越谈判能力,可为买卖双方制定量身策略,保障房产传承价值。

特点

所有权转让
要价
€ 848.000
BAE
建筑
房屋类型
Villa
建造时期
2011
能源评级
C
卧室
5
浴室
3
表面积和体积
居住面积
280 m2
地块大小
1900 m2
设施
Hiking
Mountain biking
Skiing
Surroundings: Rolling green hills - Charming villages - Romanesque chapels
Baerz & Co Property Brochure

宣传册

视频

户型图

信息/查看请求

Chantal Cunningham profile image
Chantal Cunningham
Chief Property Advisory

在购买豪华房产 Wahlbach

瓦尔巴赫兼具传承、隐私与个性化高端服务。国际买家青睐其纯粹生活方式、稀缺机会及跨境便利。社区重视长远价值与低调优雅。