ENSCHEDE
Heeckerenlaan 6 - 7531 HX
荷兰

€1,295,000
居住面积
354m2
地块大小
2603m2
卧室
5

描述

Enschede别墅坐落于2,603平方米的静谧林荫社区边缘,呈现精致的居住体验。这栋别墅兼顾建筑格调与日常舒适,提供354平方米的生活空间,为注重私密与互动的家庭打造理想格局。Enschede别墅的居住体验层层展开,配有五间卧室和三间全套卫浴设施,非常适合注重灵活布局及一层生活可能性的家庭或多代同堂。

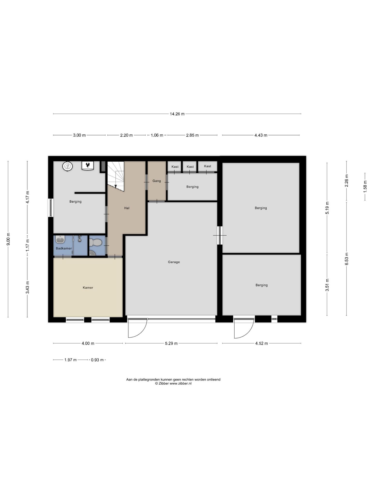
宽敞的L型客餐厅配有经典壁炉,与全配厨区相连。卧室套间直通精心设计的花园,覆顶露台与水池营造静谧氛围。地下层设有卧室、浴室、酒窖和洗衣区,宽大车库可从后方直接进入。楼上房间可按需打造更多卧室或独立休闲空间。

别墅位于Lonneker与Enschede之间,便捷通达Oldenzaal、Hengelo、优质学校、运动俱乐部及步行路线。高效隔热、报警系统及D级能效保证舒适与安心。Enschede别墅糅合私密、宁静与便捷,难得而优越的地理位置,是高端生活的不二之选。

与Baerz一起探索Enschede,您值得信赖的个人房产搜索和顾问



避免常见的陷阱

国际买家常常浪费宝贵时间在重复、过时或误导的在线房源上,尤其是因为近30%的奢华房产从未出现在公开市场上。卖方经纪人代表卖方的利益,而非买方。即使仅仅请求房产信息,也可能导致卖方经纪人未经您同意将您注册为他们的“客户”。
通过 Baerz Property Finders & Advisors,您可以完全避免这些陷阱。我们只代表您提供服务,提供独立的代理、明确的指导以及所有可用房产的访问权限,包括其他人无法看到的市场外机会。

对个人房产顾问感兴趣?

我们将所有可用的房产展示在一个地方。欢迎联系我们了解如何满足您的需求并专门保护您的利益。

特点

报警系统
所有权转让
要价
€ 1.295.000
状态
beschikbaar
接受
in overleg
建筑
房屋类型
Villa
建筑类型
vrijstaande woning
建造时期
1967
能源评级
D
屋顶类型
schilddak
卧室
5
浴室
3
表面积和体积
居住面积
354 m2
其他室内空间
73 m2
附属于建筑的外部空间
82 m2
体积(立方米)
1587 m3
地块大小
2603 m2
设施
Alarminstallatie
Baerz & Co Property Brochure

宣传册

户型图

KockvanBenthem Makelaars

Bisschopstraat 18
7571 CZ Oldenzaal

bk@kvbm.nl
+31 541 52 20 22

www.kvbm.nl

信息/查看请求

Bert Kock profile image
Bert Kock
Real Estate Agent

在购买豪华房产 Enschede

恩斯赫德欢迎全球精英,打造多元文化活力社区。独特住宅兼顾私密、设计与服务,依托便捷国际联通与本地创意精神。